Eladó lakás Budapest VI. ker, Terézváros, 149 900 000 Ft

Leírás

Exkluzív lakás eladó Budapest szívében, az VI. kerületben – páratlan panorámával az óriáskerékre!

Budapest történelmi belvárosában, az VI. kerület egyik legpatinásabb épületében kínáljuk megvételre ezt a 55 m²-es, 2+1 szobás, duplakomfortos lakást. Az 1816-ban épült, liftes társasház kifogástalan állapotban őrzi a klasszikus hangulatot, miközben modern kényelmet biztosít.
Az épületben lakások és irodák is vannak, és a környék népszerű a lakásvásárlók körében.

Az Andrássy út a világörökség része, és az egyik legikonikusabb sugárút Budapesten.

A lakás különlegességét a lenyűgöző panoráma adja: ablakaiból közvetlen kilátás nyílik Budapest ikonikus óriáskerekére. A nyugati tájolás és a 2,8 méteres belmagasság elegáns, világos és tágas életteret teremt.

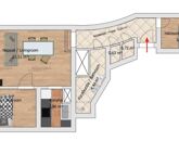
A fotókon a lakás felújítási tervei láthatók, tehát az ingatlan akár kulcsrakész állapotban is átvehető. A jelenlegi állapotáról kérése tudok fotókat küldeni.

Kiemelt tulajdonságok: Alapterület: 55 m²
Szobák: 2 + 1
Duplakomfort, beépített konyhabútor,
Légkondicionáló.
Nyugati fekvés, napfényes terek,
Radiátoros gázcirkó fűtés
Lift, kerékpártároló 1/1 tulajdon, tehermentes

A ház külső és belső állapota egyaránt kifogástalan, környezete elegáns és reprezentatív.
Az ingatlan tökéletes választás mindazoknak, akik egy valódi kuriózumot keresnek Budapest belvárosában – akár saját otthonnak, akár értékálló befektetésnek.

Lakás részletei

Ár: 149 900 000 Ft
Méret: 55 négyzetméter
Azonosító: 11576905
Cím: Andrássy út 1
Városrész: Terézváros
Emelet: 5. emelet
Építőanyag: Tégla
Fűtés jellege: Cirkó
Ingatlan állapota: Felújított
Komfort fokozat: Dupla komfort
Építési év: 50 évesnél régebbi
Elhelyezkedés: Társasház
Tulajdonviszony: Saját
Bútorozott: Részben bútorozott
Kilátás: utcai
Egész szobák: 3

Egyéb jellemzők

  • Erkély
  • Klíma
  • Lift
  • Tároló
  • Kocsibeálló

Térkép


Így keressen lakást négy egyszerű lépésben. Csupán 2 perc, kötelezettségek nélkül!

Szűkítse a lakások
listáját
Válassza ki a megfelelő
lakást
Írjon a hirdetőnek
Várjon a visszahívásra