Eladó lakás Budapest VI. ker 145 000 000 Ft

Leírás


Új építésű, modern téglalakás eladó Budapest VI. kerületében

Képzelje el, hogy egy új építésű, korszerű téglalakás kényelmét élvezheti Budapest szívében, a Budapest VI. kerület egyik legkedveltebb részén.

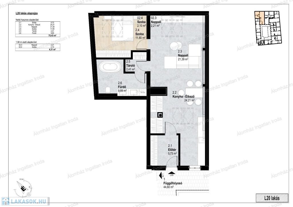
Ez a 80 m²-es, kiváló adottságokkal rendelkező ingatlan 2026-ban épül, a legmodernebb műszaki megoldások és minőségi anyagok felhasználásával. Ideális választás mind saját otthonnak, mind értékálló befektetésnek.

 

Lakás főbb jellemzői

Alapterület: 80 m²

Új építésű, téglalakás

Összkomfortos kialakítás

Házközponti fűtés egyedi mérési lehetőséggel

Modern gépészet és korszerű műszaki tartalom

Energetikai besorolás: A+++ (kiemelkedően alacsony energiaigény)

 

Elhelyezkedés és környezet

Belvárosi lokáció, pezsgő városi élet

Kiváló infrastruktúra és közlekedés

Éttermek, kávézók, üzletek, kulturális lehetőségek pár perc sétára

Ideális választás városi életstílust kedvelőknek

 

További információk

Parkolás: utcán, fizetős övezetben

Az ingatlan nem akadálymentesített

Új építésű társasház, modern megjelenéssel

Alacsony fenntartási költségek hosszú távon

 

 

✨ Ritka lehetőség új építésű lakás vásárlására Budapest belvárosában, ahol a modern technológia, az energiahatékonyság és a városi kényelem találkozik.

 


Lakás részletei

Ár: 145 000 000 Ft
Méret: 80 négyzetméter
Azonosító: 11593158
Irodai azonosító: 730800012
Emelet: 3. emelet
Építőanyag: Tégla
Fűtés jellege: Házközponti (egyedi mérővel)
Ingatlan állapota: Kitűnő
Komfort fokozat: Összkomfort
Építési év: Új építésű
Egész szobák: 2

Egyéb jellemzők

  • Lift

Így keressen lakást négy egyszerű lépésben. Csupán 2 perc, kötelezettségek nélkül!

Szűkítse a lakások
listáját
Válassza ki a megfelelő
lakást
Írjon a hirdetőnek
Várjon a visszahívásra