Eladó lakás Budapest VI. ker 123 530 550 Ft

Leírás

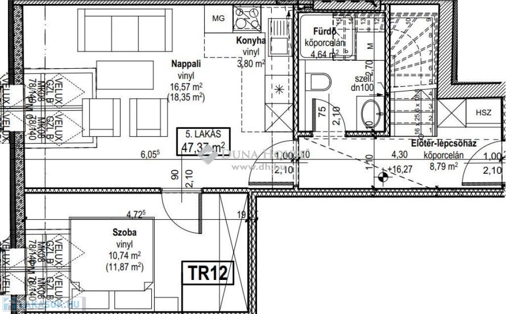
Budapesten, a belvárosban, a körúton belül, közel a Nyugati pályaudvarhoz, exkluzív fejlesztés épül!A lakások egyedisége egyrészt a régi idők és a modern kor ötvözetében rejlik. Az ingatlanok egy klasszikus épületben kapnak helyet, melynek teljes körű felújítása során, a legfelső szinten 12 modern, panorámás, nagy tetőtetőteraszos okosotthon kerül kialakításra.A projekt értékteremtő és megőrző is egyben: a ház új külsőt és belső megújuláson esik át, és az új otthonokat környezettudatos, energiatakarékos és modern megoldásokkal alakítják ki.Megtalálható itt az egy szobás garzontól kezdve az 5 szobás, nagy terekkel rendelkező lakás is, 24-86 nm-es alapterületekkel.Az építkezés elkezdődött, a lakások várható átadása 2024. II. negyedévére várható.

123530550 Ft

Referencia szám: PR080237/LK/13830-NOK

Lakás részletei

Ár: 123 530 550 Ft
Méret: 73 négyzetméter
Azonosító: 11365600
Irodai azonosító: PR080237/LK/13830-4606524
Emelet: Tetőtér
Építőanyag: Tégla
Fűtés jellege: Hőszivattyú
Ingatlan állapota: Épülő
Építési év: Új építésű
Egész szobák: 3

Egyéb jellemzők

  • Erkély
  • Lift

Térkép


Így keressen lakást négy egyszerű lépésben. Csupán 2 perc, kötelezettségek nélkül!

Szűkítse a lakások
listáját
Válassza ki a megfelelő
lakást
Írjon a hirdetőnek
Várjon a visszahívásra