Eladó lakás Budapest VI. ker 119 900 000 Ft

Leírás

Kivételes lehetőség Budapest központjában, a történelmi jelentőségű Eötvös utcában!
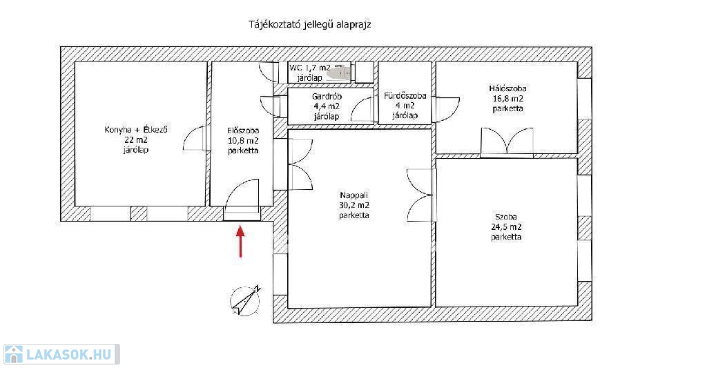
Ez a jó beosztású, körbejárható, DK-i tájolású, napfényes, 114 m2-es utcai nézetű lakás tökéletes választás otthonnak, irodának vagy befektetésnek.

A lakás főbb jellemzői:

Fűtés: Modern, zárt égésterű turbós cirkó gondoskodik a melegről és a melegvízről. Átlagos fűtés átalánydíj: 18.000 Ft/hó.
Konyha: Tágas, 22 m2-es konyha-étkező beépített gázfőzőlappal és elektromos sütővel.
Elrendezés: Különálló WC és fürdőszoba, praktikus kialakítás.
Felújítás: Pár évvel ezelőtt teljes gépészeti felújításon esett át, így az ingatlan kiváló műszaki és esztétikai állapotban van.
Tárolás: Saját zárt pincerész és közös zárt kerékpártároló áll rendelkezésre.

A társasház előnyei:
Nem körfolyosós, így csendesebb és privátabb környezetet biztosít.
Az udvar térkővel burkolt, növényekkel szépített, igazi oázis a belvárosban!
Modern motoros szellőztető rendszer a pincében a folyamatos légcsere érdekében.
Közös költség: 28.500 Ft/hó, felújítási alap: +11.400 Ft/hó.
Airbnb nem engedélyezett, ugyanakkor az alapvető szabályok betartása mellett kisállat tartása megengedett.

Páratlan elhelyezkedés:
Az Oktogon és a Nyugati pályaudvar között félúton, mindössze 5 perc sétára.
Parlament, Margitsziget, Városliget, Duna-part: 12 perc gyalog vagy pár megálló tömegközlekedéssel.
Kiváló tömegközlekedés: villamos, metró és buszmegállók pár lépésre.

Felhasználási lehetőségek:
Ideális otthon családoknak.
Kiváló irodának vagy rendelőnek.
Befektetésként is tökéletes, kiadásra optimalizált elhelyezkedés.
Könnyedén KÉT LAKÁSSÁ ALAKíTHATÓ, növelve az értékét és kiadhatóságát.

Bútorozottan is elérhető!
Az ingatlan akár teljes bútorzattal és háztartási gépekkel is megvásárolható, megbeszélés szerint.

(Egy kis érdekesség:
Az utca névadója Eötvös József báró (1813?1871): író, költő, politikus, a Magyar Tudományos Akadémia tiszteleti, igazgató tagja, 1855-től másodelnöke, 1866-tól elnöke, a Kisfaludy Társaság tagja, 1848-tól 1867-ig elnöke, 1848-ban miniszter a Batthyány-, majd 1867-ben az Andrássy-kormányban.
Mint követ részt vett az 1832-1836-os országgyűlésen, ahol a főrendi tábla liberális ellenzékéhez tartozott.
Az 1843-1844-es országgyűlésben a centrista ellenzék vezére.
Buda szabad királyi főváros 1845. május 19-én a haza s különösen a városok ügyeinek előmozdítása körül szerzett érdemekért díszpolgári címmel tüntette ki.
Pest szabad királyi város törvényhatósági bizottságának tagja.
1848-ban az első felelős magyar minisztériumban a vallás- és nevelésügyi miniszter.
Több nagy regényt írt, amelyekben hitelesen ábrázolta kora társadalmi viszonyait.
Mint vallás- és közoktatásügyi miniszter kidolgozta az általános és kötelező népoktatásról és a zsidók polgári egyenjogúsításáról szóló törvényt.)

Ne hagyja ki ezt a ritka lehetőséget a belváros szívében, hívjon most!
Referenciaszám: M293772

Lakás részletei

Ár: 119 900 000 Ft
Méret: 114 négyzetméter
Azonosító: 11550173
Irodai azonosító: M293772-4842909
Cím: Budapest 6. ker.i 114 nm-es lakás eladó
Emelet: Földszint
Építőanyag: Tégla
Fűtés jellege: Cirkó
Ingatlan állapota: Kitűnő
Komfort fokozat: Összkomfort
Építési év: 50 évesnél régebbi
Kilátás: utcai
Egész szobák: 3

Térkép


Így keressen lakást négy egyszerű lépésben. Csupán 2 perc, kötelezettségek nélkül!

Szűkítse a lakások
listáját
Válassza ki a megfelelő
lakást
Írjon a hirdetőnek
Várjon a visszahívásra