Eladó lakás Budapest V. ker 339 000 000 Ft

Leírás

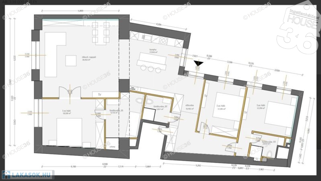
Budapest egyik legismertebb sétáló utcájában található ez a rendkívül kifinomult 3,7 méter belmagasságú luxus lakás.
Neves tervezőiroda által megálmodott és egyedileg kivitelezett értékálló polgári lakás. Egyedileg tervezett bútorok, minőségi hidegburkolatok, led fény világítások mellett különleges Onyx kőből épitett bárpult is található.


Figyelem az adatlap megbízónktól kapott adatok alapján készült, pontosságáért felelősséget nem tudunk vállalni!

A HOUSE36 kínálatában található összes ingatlannal kapcsolatban tudok felvilágosítást nyújtani!
Hívjon bizalommal!
Szolgáltatásaink Kereső ügyfeleink számára ingyenesek.
Az iroda legfrissebb, aktuális kínálatát a HOUSE36 saját weboldalán találja!

Lakás részletei

Ár: 339 000 000 Ft
Méret: 129 négyzetméter
Azonosító: 11384110
Irodai azonosító: 3617084-4564298
Emelet: 4. emelet
Építőanyag: Tégla
Fűtés jellege: Cirkó
Ingatlan állapota: Kitűnő
Építési év: 50 évesnél régebbi
Egész szobák: 4

Térkép


Így keressen lakást négy egyszerű lépésben. Csupán 2 perc, kötelezettségek nélkül!

Szűkítse a lakások
listáját
Válassza ki a megfelelő
lakást
Írjon a hirdetőnek
Várjon a visszahívásra