Eladó lakás Budapest V. ker 235 000 000 Ft

Leírás

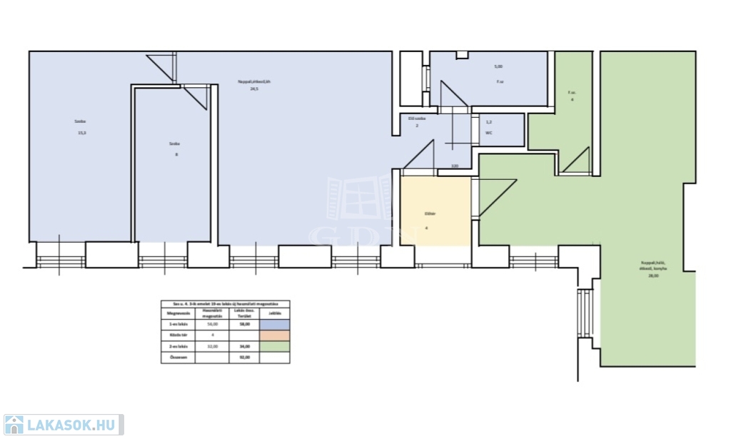
Kivételes lehetőség Budapest szívében – kétlakásos, teljes körűen felújított ingatlan az V. kerületben!

Eladásra kínálunk egy 90 m²-es, teljes körűen felújított lakást Budapest belvárosában, az V. kerület egyik igényes, folyamatosan karbantartott, liftes társasházának harmadik emeletén.

Az ingatlan különlegessége, hogy két különálló lakrészből áll – egy kisebb és egy nagyobb egységből –, így ideális befektetőknek, összeköltözőknek, vagy akár iroda és lakás kombinációjára is. A két lakás külön közműórákkal rendelkezik, így a fenntartásuk is egyszerűen elszámolható.

A ház rendezett, szép állapotú, lakóközössége kulturált, és a folyamatos fejlesztéseknek köszönhetően értéktartó környezetet biztosít.

A környék páratlan infrastruktúrával rendelkezik: boltok, éttermek, kávézók, iskolák, tömegközlekedés, minden elérhető pár perc sétával. A belvárosi élet minden előnyét élvezheti egy nyugodt, igényes környezetben.

Befektetésnek, saját célra, rövid- vagy hosszútávú kiadásra is kiváló választás.

Megtekinthető a hét bármely napján!
Várom a hívását, akár hétvégén is!

B.Cs.

Lakás részletei

Ár: 235 000 000 Ft
Méret: 90 négyzetméter
Azonosító: 11553337
Irodai azonosító: 385415
Cím: Október 6. utca
Emelet: 3. emelet
Építőanyag: Tégla
Fűtés jellege: Villany
Ingatlan állapota: Felújított
Komfort fokozat: Luxus komfort
Építési év: 50 évesnél régebbi
Tulajdonviszony: Saját
Kilátás: udvari
Egész szobák: 4

Egyéb jellemzők

  • Erkély
  • Garázs
  • Lift
  • Pince
  • Tároló

Térkép


Így keressen lakást négy egyszerű lépésben. Csupán 2 perc, kötelezettségek nélkül!

Szűkítse a lakások
listáját
Válassza ki a megfelelő
lakást
Írjon a hirdetőnek
Várjon a visszahívásra