Eladó lakás Budapest V. ker 174 000 000 Ft

Leírás

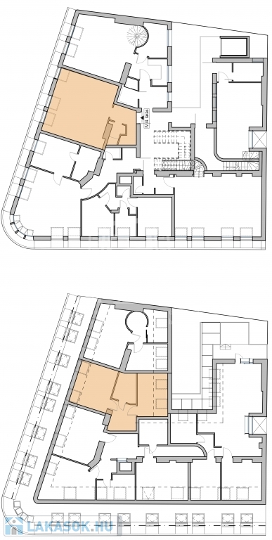
V. kerület Belvárosi részén, napfényes, magasemeleti luxus lakások kerülnek kialakításra a kivitelezéssel párhuzamosan pedig az épület korhűen megújul és egyidejűleg modern felvonó kerül beépítésre. Összesen 105m2 lakóterülettel rendelkezik ez a remek kéthálószobás, tetőteraszos ingatlan. A bejárati szinten a konyha nappali mellett egy vizes helyiség kerül kialkaításra, a hálószobák az élettértől jól elszeparálva az emeleten kapnak helyet a mellékhelyiségekkel, innen jutunk fel a privát 28m2-es tetőteraszra mely kizárólag ennek a lakásnak a kényelmét biztosítja. Az előrelátó tervezésnek köszönhetően nem lakószobából megközelíthető a tetőterasz így valóban szerves része lehet a lakásnak. A mellékelt látványtervek csupán egy, a számtalan megvalósítható lehetőség közül, jelen stádiumban még 100%-ban lehetséges a leendő tulajdonosok elképzeléseinek megvalósítása.

• ÉS MIÉRT ÉPP EZ A LEGMEGFELELŐBB VÁLASZTÁS?
• Kitűnő lokáció a az ország legjobb egyetemei közelében
• Remek tömegközlekedési lehetőségek
• Őrzött mélygarázs a közelben
• Minden egyes lakás, intim, napsütötte terasszal rendelkezik
• Műemlék környezet a klasszikus Belvárosban
• Igény szerinti 100%-ban testre szabott lakások
• Igény esetén extra felszereltség a minőségi lakhatásért


A 87m2-es értékesítési alapterület tartalmazza a nettó 68m2-es lakótéren felül 190cm alatti területek (9m2) és a terasz (28m2) területének 50%-át.
Külön megbízás keretében a megvásárolt lakás teljes bútorozását és felszerelését vállaljuk a bérbeadással és utógondozással együtt így Önnek csak a bérleti díj beérkezését kell ellenőriznie.
Szükség esetén banksemleges hiteltanácsadással tudjuk segíteni a kiszemelt lakás megvásárlását.

Lakás részletei

Ár: 174 000 000 Ft
Méret: 68 négyzetméter
Azonosító: 11430939
Irodai azonosító: 277646
Cím: Belvárosi loft
Emelet: 4. emelet
Építőanyag: Tégla
Fűtés jellege: Cirkó
Ingatlan állapota: Kitűnő
Komfort fokozat: Összkomfort
Építési év: 1-5 éves
Tulajdonviszony: Saját
Kilátás: utcai
Egész szobák: 2
Fél szobák: 1

Egyéb jellemzők

  • Erkély
  • Garázs
  • Lift
  • Pince
  • Tároló

Térkép


Így keressen lakást négy egyszerű lépésben. Csupán 2 perc, kötelezettségek nélkül!

Szűkítse a lakások
listáját
Válassza ki a megfelelő
lakást
Írjon a hirdetőnek
Várjon a visszahívásra