Eladó lakás Budapest V. ker 160 000 000 Ft

Leírás

Két lakás Airbnb-potenciállal, most egy áráért!

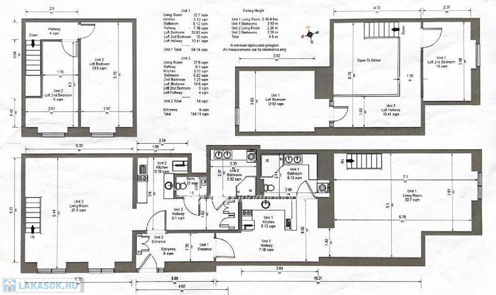
Eladó egy exkluzív, 161 nm-es ingatlan, amely két külön apartmanná alakítva, kétszer nappali + két hálószobás elrendezéssel várja új tulajdonosát. Az ingatlan összesen 6 tágas szobát kínál, dupla komforttal, garantált hozammal az Airbnb-piacon. A lakás kiváló állapotú, modern és elegáns dizájn jellemzi, és egy nagyon szép, karbantartott házban található.

Kiemelkedő befektetési lehetőség: Stabil és biztos hozamot kínál, köszönhetően a keresett elhelyezkedésnek és az Airbnb-potenciálnak.
Ideális elhelyezkedés:

Akár új otthont keres, akár egy remek befektetést, ez az ingatlan minden igényét kielégíti!
Ne hagyja ki ezt a különleges lehetőséget,vegye fel velünk a kapcsolatot, és tekintse meg személyesen!

Lakás részletei

Ár: 160 000 000 Ft
Méret: 106 négyzetméter
Azonosító: 11444850
Irodai azonosító: M291030-4786361
Cím: Budapest 5. ker.i eladó 106 nm-es lakás
Emelet: Földszint
Építőanyag: Tégla
Fűtés jellege: Egyedi
Ingatlan állapota: Kitűnő
Komfort fokozat: Dupla komfort
Építési év: 50 évesnél régebbi
Kilátás: utcai
Egész szobák: 5
Fél szobák: 1

Egyéb jellemzők

  • Lift

Térkép


Így keressen lakást négy egyszerű lépésben. Csupán 2 perc, kötelezettségek nélkül!

Szűkítse a lakások
listáját
Válassza ki a megfelelő
lakást
Írjon a hirdetőnek
Várjon a visszahívásra