Eladó lakás Budapest IX. ker 96 600 000 Ft

Leírás

2000 es években épült társasház 5. emeletén világos, nagy teraszos, fiatalos amerikai konyhás lakás eladó.
Az épület a Haller park mellett található, közvetlen kijárattal a parkra. A ház előtt és mellett is villamosmegálló, ahonnan villamossal a környező közlekedési csomópontok percek alatt elérhetőek. A metró és a Lurdi park is 5 perc sétára található.
Az épületben kényelmes, tágas lift, portaszolgálat, biciklitároló van. Számzáras kapunyitó és kaputelefon teszi kényelmessé a ki és bejutást. A lakás biztonsági ajtóval van felszerelve.
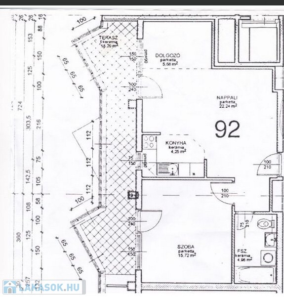
A lakásnak kis előtere, tágas, világos amerikai konyhás nappalija és nagy hálószobája van. A fényes hálószoba , és a modern nappali-konyha is a lakás mellett végigfutó 18 m2-es teraszra nyílik, mely sok hangulatos beszélgetésnek és grillezésnek volt már eddig is idális helyszíne. A teraszon két napellenző biztosítja az árnyékolást. A nappalihoz egy igény esetén akár hálórésznek is leválasztható dolgozórész tartozik, ami a lakást ideálissá teszi a home-officehoz, a lakás nettó területe 52 m2.
A fürdőszoba és a WC külön helységben van, a fürdőben mosógép.
A lakásba az internet, kábeltelevízió be van kötve, a nappali és a hálószoba is légkondicionált.
A konyha megrendelésre készített konyhabútorral van felszerelve, teljesen gépesített (hűtő, mosogatógép, kerámia főzőlap, sütő, mikró).
A házban teremgarázsban parkolóhelyek általában bérelhetőek vagy megvásárolhatóak, a ház körül fizető parkolóövezet van.
A lakás egyedülállóknak, pároknak, kis gyerekes fiataloknak is ideális.

Lakás részletei

Ár: 96 600 000 Ft
Méret: 62 négyzetméter
Azonosító: 11589629
Irodai azonosító: 347379
Cím: Haller utca
Emelet: 5. emelet
Építőanyag: Tégla
Fűtés jellege: Házközponti (egyedi mérővel)
Ingatlan állapota:
Komfort fokozat: Összkomfort

Egyéb jellemzők

  • Erkély
  • Garázs
  • Lift
  • Kertkapcsolat

Így keressen lakást négy egyszerű lépésben. Csupán 2 perc, kötelezettségek nélkül!

Szűkítse a lakások
listáját
Válassza ki a megfelelő
lakást
Írjon a hirdetőnek
Várjon a visszahívásra