Eladó lakás Budapest IX. ker 95 000 000 Ft

Leírás

IDEÁLIS VÁLASZTÁS AZ ÚJ 3 %-OS OTTHON START HITELHEZ!!!

Eladó 77 m2 lakás a Belső-Ferencvárosban, a 9. kerületben!

Kiváló lehetőség vár rád a Lónyay utcában!

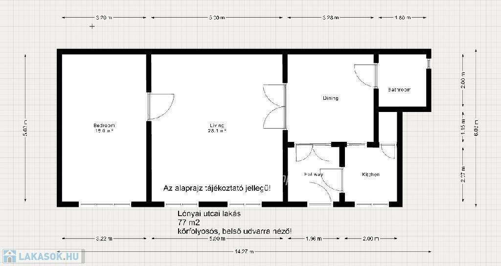
A belső körfolyosós társasház 4. emeletén található délkeleti fekvésű lakás jelenleg két szobával, hallal, fürdőszobával és egy konyhával, illetve spájzzal rendelkezik.
A mellékelt átalakítási terv szerint kialakítható egy szülői és két kisebb hálószoba, illetve egy amerikai konyhás nappali. A tervezett felújítás jelentősen felértékeli az ingatlant. Ugyanakkor két külön lakás is kialakítható belőle!

A lakás mindössze egy utcára található a Duna parttól, és a Ráday utcában található vigalmi negyedtől, ahol népszerű éttermek, kávézók, és egyéb kikapcsolódási lehetőségek is vannak.

Közvetlen közelben oktatási intézmények sokasága (ELTE, Corvinus, SOTE, Pázmány Péter Katolikus Egyetem, BME, Budapest Music Center).

A Nagy Vásárcsarnok, a Nehru park, a Goethe Intézet, a Szabó Ervin könyvtár és a Bálna 5 perc, a Gellérthegy pedig 20 perc sétával érhető el.

Tömegközlekedés szempontjából is tökéletes választás, hiszen a közvetlen közelben van a 15-ös, a 115-ös buszok, illetve a 979/A éjszakai járat megállója, a 83-as troli, a 2-es villamos, a 3-as és 4-es metrók pedig séta távolságra.

Parkolni az utcán, közterületen lehetséges. A parkolás a helyi bejelentett lakosoknak kedvezményes.

Az ingatlan tehermentes, kiürített állapotban, azonnal birtokba vehető.

Köszönöm megtisztelő figyelmét. Amennyiben jelenlegi ingatlana értékesítésében is segítségére lehetek,
illetve az OTP teljes ingatlankínálatával kapcsolatban kérem forduljon hozzám bizalommal.
Az OTP Ingatlanpont, mint egyetlen közvetlen banki hátterű ingatlanközvetítő társaság
teljes körű ügyintézéssel áll eladóik és vevőik rendelkezésére!
Piaci és kedvezményes hitel- valamint lízingkonstrukciókat kínálunk mint
lakásvásárlási hitel, szabad felhasználású hitel, babaváró hitel,
CSOK Plusz-intézés, Otthonfelújítási Támogatás, egyéb felújítási hitelek.
Az adásvételi szerződés megkötéséhez igény szerint megbízható ügyvédi
közreműködést is biztosítunk.
Ha felkeltettem érdeklődését,
ne habozzon keresni a hét bármely napján reggel 9 és este 9 között.
Ügyfeleinknek minden szolgáltatásunk (valóban) díjmentes.

WE SPEAK ENGLISH, FEEL FREE TO CALL ME!


Kérem hivatkozzon az alábbi referenciaszámra: M311151

Lakás részletei

Ár: 95 000 000 Ft
Méret: 77 négyzetméter
Azonosító: 11561491
Irodai azonosító: M311151-5023095
Emelet: 4. emelet
Építőanyag: Tégla
Fűtés jellege: Konvektoros
Ingatlan állapota: Felújítandó
Komfort fokozat: Összkomfort
Építési év: 50 évesnél régebbi
Kilátás: udvari
Egész szobák: 2

Egyéb jellemzők

  • Lift

Térkép


Így keressen lakást négy egyszerű lépésben. Csupán 2 perc, kötelezettségek nélkül!

Szűkítse a lakások
listáját
Válassza ki a megfelelő
lakást
Írjon a hirdetőnek
Várjon a visszahívásra