Eladó lakás Budapest IX. ker 69 900 000 Ft

Leírás

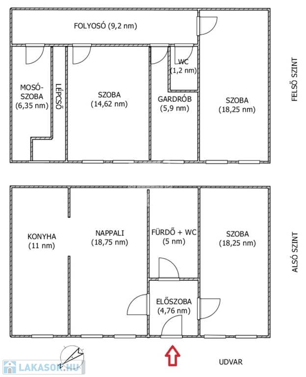
Belső kétszintes, csendes, 4 szobás, tágas lakás a Klinikák metróállomás közelében eladó !

Egy különleges hangulatú, belső kétszintes, 4 szobás, duplakomfortos lakás az 1900-as évek elején épült, szépen karbantartott társasház tágas belső udvarára néz, nyugodt életteret biztosítva új tulajdonosának.
A lakás a tulajdoni lapon 55 négyzetméterként szerepel, azonban a kialakításnak köszönhetően bruttó 103 négyzetméteres (használatbavételi engedéllyel). A lakáshoz tartozik egy 12 m²-es önálló pincehelyiség is.
Főbb jellemzők:
-Belmagasság: 5,2 m, tágas, levegős térérzet - alsó szint: 2,55 m, felső szint: 2,18 m.
-Fűtés: cirkó gáz + konvektor - 2018-ban került korszerűsítésre.
-Melegvíz: korszerű hibrid bojler (fűtésről és elektromosan is működik)
-Elektromos hálózat felújítva: 2016–2017
-Nyílászárók: műanyag
-Közös költség: 22.880 Ft, vízórával
-Extra lehetőség: az emeleti WC melletti tárolóban további fürdőszoba alakítható ki
A társasház homlokzata a lakás előtti részen 2024-ben esett át felújításon, így rendezett és esztétikus környezet várja az új tulajdonost.

Közlekedés:
A lokáció kiváló: az M3-as metró Klinikák megállója mindössze 2 perc sétára, de pár percen belül elérhető a 4-6-os villamos, valamint a 24-es és 51-es villamos is. Parkolás az utcán, fizetős övezetben lehetséges.

Környék:
A lakás közvetlenül a Ludovika tér és az Orczy-kert szomszédságában található, így zöldterület, pihenési lehetőség is adott. A környék számos étterem, kávézó, bolt kínálatával szolgálja a mindennapi kényelmet. A közelben található a Semmelweis Egyetem, a Nemzeti Közszolgálati Egyetem, valamint több más felsőoktatási intézmény is 15-20 perc alatt tömegközlekedéssel megközelíthető.

Amennyiben felkeltette érdeklődését az ingatlan és kérdése van vagy személyesen is szeretné megtekinteni, várom hívását egyeztetés céljából.
(PM)

Lakás részletei

Ár: 69 900 000 Ft
Méret: 103 négyzetméter
Azonosító: 11561555
Irodai azonosító: 386634
Cím: Üllői út
Emelet: Földszint
Építőanyag: Tégla
Fűtés jellege: Cirkó
Ingatlan állapota:
Komfort fokozat: Dupla komfort
Építési év: 50 évesnél régebbi
Tulajdonviszony: Saját
Kilátás: udvari
Egész szobák: 4

Egyéb jellemzők

  • Erkély
  • Garázs
  • Lift
  • Pince
  • Tároló

Térkép


Így keressen lakást négy egyszerű lépésben. Csupán 2 perc, kötelezettségek nélkül!

Szűkítse a lakások
listáját
Válassza ki a megfelelő
lakást
Írjon a hirdetőnek
Várjon a visszahívásra