Eladó lakás Budapest IX. ker 42 900 000 Ft

Leírás

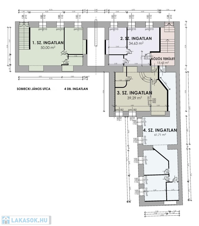
Budapest IX. kerületében eladó egy 62 m² alapterületű szuterén lakás (a. csatolt alaprajz szerint a 4. lakás), amely kiváló választás lehet első otthonnak vagy befektetés céljára egyaránt.
Fontos: az ingatlanra hitel nem vehető fel, ezért kizárólag készpénzes vevők jelentkezését várom.
Ugyanakkor a lakás kedvező ára miatt a hitel felvétele nem is indokolt, így ideális lehet fiatalok számára első lakásként, akik nem szeretnének azonnal nagy összegű hitelt vállalni.
A lakás elosztása praktikus és jól kihasználható:
- 2 fél szoba
- amerikai konyhás nappali
- fürdőszoba
A társasház téglaépítésű, rendezett, jó lakóközösséggel.
A lakás fűtése padlófűtéssel és klímával megoldott.
A nappali klímája kedvező H-tarifás vételezéssel is ki van egészítve, ami a téli fűtési időszakban jelentős rezsimegtakarítást biztosít.
Elhelyezkedése kiváló: a Nagyvárad tér közelsége és a jó metrókapcsolat miatt nem csak dolgozó fiataloknak, hanem diákok számára is kifejezetten vonzó, így befektetőknek is remek lehetőség hosszú vagy rövid távú kiadásra.
Ingatlanközvetítők kérem ne keressenek!

Lakás részletei

Ár: 42 900 000 Ft
Méret: 62 négyzetméter
Azonosító: 11601032
Cím: Sobieski János utca 38.
Emelet: Alagsor
Építőanyag: Tégla
Fűtés jellege: Villany
Ingatlan állapota: Felújított
Elhelyezkedés: Társasház
Tulajdonviszony: Saját
Bútorozott: Nem bútorozott
Kert: Nincs
Egész szobák: 1
Fél szobák: 2
Nappalik: 1

Egyéb jellemzők

  • Erkély
  • Garázs
  • Klíma
  • Lift
  • Kertkapcsolat
  • Kocsibeálló

Térkép


Így keressen lakást négy egyszerű lépésben. Csupán 2 perc, kötelezettségek nélkül!

Szűkítse a lakások
listáját
Válassza ki a megfelelő
lakást
Írjon a hirdetőnek
Várjon a visszahívásra