Eladó lakás Budapest IX. ker 99 900 000 Ft

Leírás


FEDEZZE FEL AZ IDEÁLIS OTTHONT BUDAPEST SZÍVÉBEN! Eladó egy KIVÉTELES ingatlan a IX. kerületben, a dinamikusan fejlődő Bokréta utcában. Ez a 76 nm-es lakás TÖKÉLETES választás családoknak, fiatal pároknak vagy akár befektetőknek, akik értékelik a város nyüzsgését, mégis szívesen vágynak egy csendes otthonra.



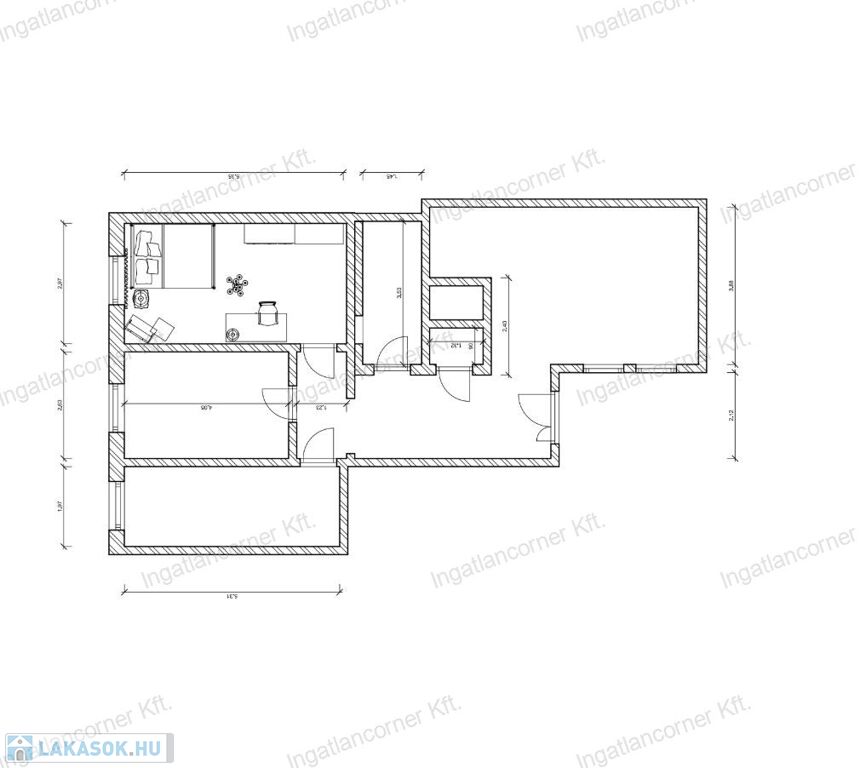
A tégla építésű, LIFTES ház második emeletén található lakás JÓ ÁLLAPOTÚ, és CSODÁS ELRENDEZÉSŰ. Három KÜLÖN NYÍLÓ SZOBÁVAL rendelkezik, így biztosítva a lakók PRIVÁT SZFÉRÁJÁT. Az előszoba tágas, a KONYHA ÉTKEZŐVEL KIALAKÍTOTT, mely kényelmes és praktikus a mindennapi életvitelhez.



A lakás különleges KÜLSŐ ÉS UDVARI TÁJOLÁSSAL bír, ami biztosítja a napfény egész napos beáramlását, így a helyiségek VILÁGOSAK és otthonosak. A ZUHANYZÓS FÜRDŐSZOBA és a KÜLÖN WC igényes kivitelűek, és kényelmesek egyszerre! Az ingatlan valóban minden igényt kielégítő, kényelmes és praktikus, nem beszélve az exkluzív, +2.000.000.- forintért megvásárolható bútorok adta lehetőségekről. A fűtés saját gázkazánról működik.



A helyi infrastruktúra KIVÁLÓ: az EGYETEMEK, a BKV hálózat, a 4-ES 6-OS VILLAMOS, valamint számtalan bevásárlási lehetőség karnyújtásra található. A környéken óvodák, iskolák, és számos szabadidős tevékenység is elérhető, így minden korosztály számára REMEK választás!



Egy RITKA lehetőség, ahol a nyüzsgő városi élet és a nyugodt otthoni légkör találkozik! Az ingatlan PER ÉS TEHERMENTES, így új tulajdonosát gondtalanul várja. Ne szalassza el ezt az egyedülálló sanszot, és válassza ezt a CSODÁLATOSLAKÁST, ahol ÖN és családja is otthon érezheti magát! Érdeklődjön MOST, és biztosítsa be új otthonát a IX. kerület szívében!



Hívjon bizalommal akár hétvégén is a részletekért, amennyiben nem tudom fogadni a hívását akkor visszahívom.

Lakás részletei

Ár: 99 900 000 Ft
Méret: 76 négyzetméter
Azonosító: 11507471
Irodai azonosító: 107003966
Emelet: 2. emelet
Építőanyag: Tégla
Fűtés jellege: Központi
Ingatlan állapota:
Egész szobák: 3

Egyéb jellemzők

  • Lift

Így keressen lakást négy egyszerű lépésben. Csupán 2 perc, kötelezettségek nélkül!

Szűkítse a lakások
listáját
Válassza ki a megfelelő
lakást
Írjon a hirdetőnek
Várjon a visszahívásra