Eladó lakás Budapest IV. ker 95 000 000 Ft

Leírás

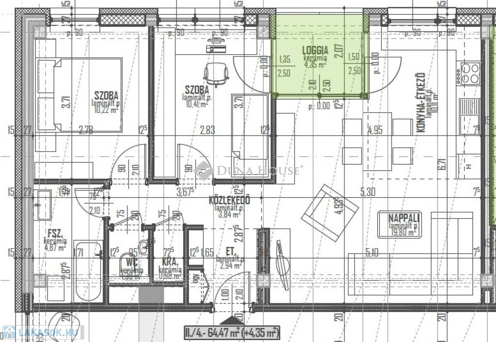
Eladó lakás az Aktív Lakóparkban!
Ha fontos számodra az egészséges, aktív életmód, akkor ez a lakás neked való! A sport tematikájú lakópark egyedülálló környezetet kínál mindazoknak, akik szeretik a mozgást és a természet közelségét. Privát sportpályák a lakóparkon belül sportolj bármikor, pár lépésre az otthonodtól A Duna közelsége tökéletes hely futáshoz, sétához vagy kerékpározáshoz Teljesen elkészült, kulcsrakész állapot költözz azonnal, felújítás nélkül Prémium minőségű épület modern kivitelezés, igényes környezetIdeális választás mindazoknak, akik a városi élet kényelmét szeretnék ötvözni az aktív kikapcsolódás lehetőségével. Érdeklődj üzenetben, és nézd meg személyesen ezt a különleges lakást!A zárt lakóparkban aktív sporttevékenységet folytathat leendő tulajdonosa,hiszen számos privát sportpályával rendelkezik a terület.Az ingatlant első tulajdonosként veheti birtokba, jogilag is új építésűként!Jöjjön el nézze meg ezt a kitűnő lakást !

Referencia szám: LK047994

Lakás részletei

Ár: 95 000 000 Ft
Méret: 69 négyzetméter
Azonosító: 11610874
Irodai azonosító: LK047994-5189069
Cím: Budapest 4. ker.i 69 nm-es lakás eladó
Emelet: 2. emelet
Építőanyag: Tégla
Fűtés jellege: Hőszivattyú
Ingatlan állapota: Épülő
Komfort fokozat: Összkomfort
Építési év: Új építésű
Kilátás: panorámás
Egész szobák: 3

Egyéb jellemzők

  • Erkély
  • Garázs
  • Lift

Térkép


Így keressen lakást négy egyszerű lépésben. Csupán 2 perc, kötelezettségek nélkül!

Szűkítse a lakások
listáját
Válassza ki a megfelelő
lakást
Írjon a hirdetőnek
Várjon a visszahívásra