Eladó lakás Budapest IV. ker 95 000 000 Ft

Leírás

Eladó lakás a 4. kerületben az Aktív Lakóparkban!

Ha fontos számodra az egészséges, aktív életmód, akkor ez a lakás neked való! A sport tematikájú lakópark egyedülálló környezetet kínál mindazoknak, akik szeretik a mozgást és a természet közelségét.

Privát sportpályák a lakóparkon belül sportolj bármikor, pár lépésre az otthonodtól

A Duna közelsége tökéletes hely futáshoz, sétához vagy kerékpározáshoz

Teljesen elkészült, kulcsrakész állapot költözz azonnal, felújítás nélkül

Prémium minőségű épület modern kivitelezés, igényes környezet

Ideális választás mindazoknak, akik a városi élet kényelmét szeretnék ötvözni az aktív kikapcsolódás lehetőségével.

Érdeklődj üzenetben, és nézd meg személyesen ezt a különleges lakást!


A zárt lakóparkban aktív sporttevékenységet folytathat leendő tulajdonosa,

hiszen számos privát sportpályával rendelkezik a terület.

Lakás részletei

Ár: 95 000 000 Ft
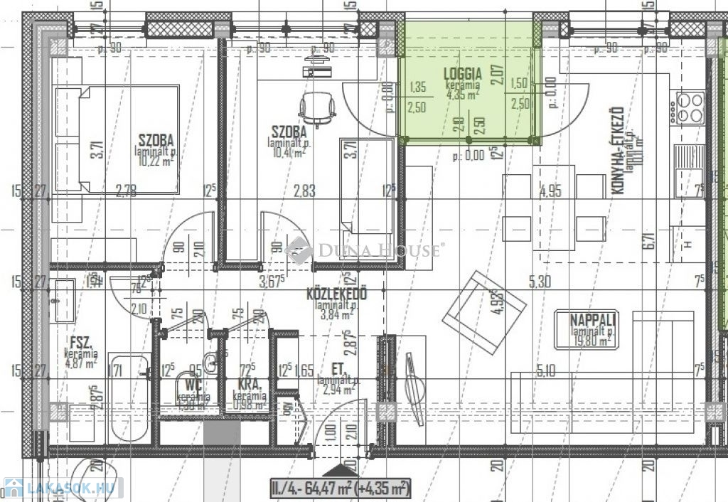
Méret: 69 négyzetméter
Azonosító: 11607512
Irodai azonosító: LK047994-5180116
Cím: Budapest 4. ker.i 69 nm-es lakás eladó
Emelet: 2. emelet
Építőanyag: Tégla
Fűtés jellege: Hőszivattyú
Ingatlan állapota: Épülő
Építési év: Új építésű
Egész szobák: 3

Egyéb jellemzők

  • Erkély
  • Lift

Térkép


Így keressen lakást négy egyszerű lépésben. Csupán 2 perc, kötelezettségek nélkül!

Szűkítse a lakások
listáját
Válassza ki a megfelelő
lakást
Írjon a hirdetőnek
Várjon a visszahívásra