Eladó lakás Budapest IV. ker, Újpest, 90 000 000 Ft

Leírás

Bízzon bennem! 26. éve dolgozok ingatlanközvetítőként!

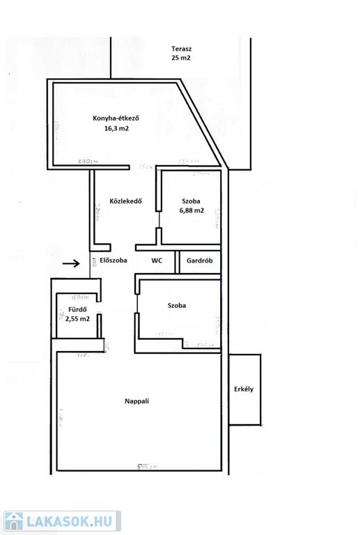
ÚJPESTI irigylésre méltó tágas étkezőkonyhájából megközelíthető teraszos lakás várja új gazdáját!
Előnyei:
- 25 nm-es sarok terasza páratlan életérzést nyújt - tágítja a lakás életterét tavasztól őszig!
- terasza rendkívül jó alakú, megnöveli az életteret és örökpanorámás a zöld környezetre, a környék parkosított területére!
- csendes a lakás, mégis, nagyon közel helyezkedik el tömegközlekedéshez, bevásárláshoz, orvoshoz, SZTK-hoz, OBI-hoz, SPAR-hoz, önkormányzathoz, postához, gyógyszertárhoz, piachoz és még sorolhatnám...
- rendkívül jó beosztású,
- új nyílászárói, hűtő-fűtő készülékei és az új kombi cirkókészülék mind hozzájárulnak a komfortérzethez,
- ritkaságszámba megy az óriási, 16 nm-es étkezőkonyhája, ami teraszával közvetlen kapcsolatos!
- egyedileg méretre készített a gépesített konyhabútora, ami a vételár részét képezi,
- pince tároló is tartozik a lakáshoz!
- az ingatlan szinte azonnal költözhető, hiszen teher- és permentes az ingatlan!
- az ingatlan Tulajdonosai ráadásul már megtalálták az új otthonukat, így tudunk tárgyalni a kiköltözésről!

Kíváncsian várom véleményét a lakásról készült videó alapján!

Lakás részletei

Ár: 90 000 000 Ft
Méret: 77 négyzetméter
Azonosító: 11611742
Városrész: Újpest
Rezsi: 25 000 Ft/hó
Emelet: 3. emelet
Építőanyag: Tégla
Fűtés jellege: Cirkó
Ingatlan állapota: Felújított
Komfort fokozat: Összkomfort
Építési év: 50 évesnél régebbi
Elhelyezkedés: Társasház
Tulajdonviszony: Saját
Bútorozott: Nem bútorozott
Kilátás: kertre néző
Kert: Nincs
Egész szobák: 2
Fél szobák: 1
Nappalik: 1

Egyéb jellemzők

  • Erkély
  • Garázs
  • Klíma
  • Lift
  • Pince
  • Kertkapcsolat
  • Tároló
  • Kocsibeálló

Videók (1)


Így keressen lakást négy egyszerű lépésben. Csupán 2 perc, kötelezettségek nélkül!

Szűkítse a lakások
listáját
Válassza ki a megfelelő
lakást
Írjon a hirdetőnek
Várjon a visszahívásra