Eladó lakás Budapest IV. ker 79 000 000 Ft

Leírás

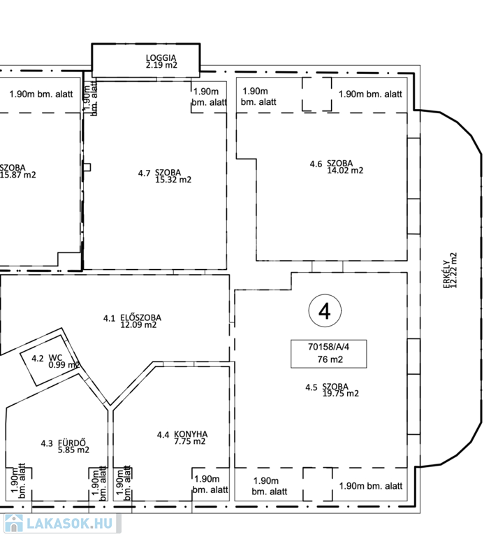
IV. kerületben, a Deák Ferenc utcában eladó egy 84 m2-es, ERKÉLYES (14 m2), 3 szobás, CSENDES, VILÁGOS, jó állapotú lakás.

A 2010-ben épült 5 lakásos társasház 1 emeletes.

A lakás főbb jellemzői:

- TEHERMENTES
- kitűnő beosztású
- 2 erkélyes
- zárt lépcsőház
- alacsony rezsi
- minden egyedileg mérhető
- ablakos konyhás

Fűtése: gáz cirkó

Közelben: Újpesti piac, bevásárlási lehetőségek, óvoda, iskola, bankok, posta, gyógyszertár stb.

Közlekedés: kiváló (Újpest központ 10 perc sétára)

További részletekért, hívjon bizalommal!
K.M.

Lakás részletei

Ár: 79 000 000 Ft
Méret: 84 négyzetméter
Azonosító: 11512093
Irodai azonosító: 380882
Cím: Deák Ferenc utca
Emelet: 1. emelet
Építőanyag: Tégla
Fűtés jellege: Cirkó
Ingatlan állapota:
Komfort fokozat: Összkomfort
Építési év: 11-20 éves
Tulajdonviszony: Saját
Kilátás: kertre néző
Egész szobák: 3

Egyéb jellemzők

  • Erkély
  • Garázs
  • Lift
  • Pince
  • Tároló

Térkép


Így keressen lakást négy egyszerű lépésben. Csupán 2 perc, kötelezettségek nélkül!

Szűkítse a lakások
listáját
Válassza ki a megfelelő
lakást
Írjon a hirdetőnek
Várjon a visszahívásra