Eladó lakás Budapest III. ker 96 650 000 Ft

Leírás

Világos, modern lakás, amit azonnal megszeret !

Ha olyan otthont keres, ami praktikus, igényes és jó helyen van, megtalálta !
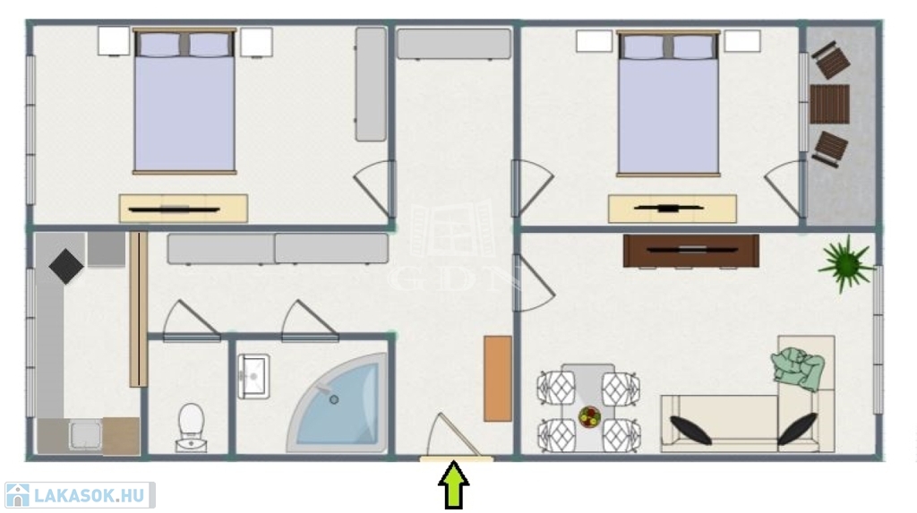
Ez a felújított, 65 nm-es, erkélyes lakás a Flórián tér közelében található, egy 3. emeleti, világos, remek elosztású otthon, ahol minden négyzetméternek funkciója van.
Tágas nappali, két külön nyíló háló, ablakos konyha és erkély biztosítja a kényelmet és a jól élhető tereket.

A teljes társasház panelprogramon esett át, a homlokzat és a nyílászárók is megújultak, a lépcsőház rendezett, frissen felújított.
A lakás műszakilag is rendben van, így komolyabb ráfordítás nélkül költözhető – ide tényleg csak be kell hoznod a bőröndöd!
( Egyes bútorok igény-, és megállapodás szerint maradhatnak).

A környék kiváló infrastruktúrával rendelkezik:
- pár perc sétára szupermarketek (Penny, CBA ),
- iskola, óvoda, orvosi rendelő,
- kiváló közlekedés – néhány perc a Flórián tér, több busz- és villamosjárat ,valamint a H5-ös hév is könnyen elérhető,
- a Duna-part és a Kiscelli park kellemes zöld környezetet kínál a mindennapokhoz.

Közös költség 16.250,- Ft/hó.
Rezsi: távfűtés átalány 12.666,- Ft/hó
Gáz átalány 5.635,- Ft/negyedév
Víz és áram fogyasztás alapján

Ajánlom mindazoknak, akik egy gondosan karbantartott, modern, világos otthont keresnek Óbuda egyik legkedveltebb utcájában – legyen szó fiatal párról, kisgyermekes családról vagy akár befektetőről, aki hosszú távon értékálló ingatlant keres.

A lakást évek óta megbízható bérlők lakják, akik 2026 februárjáig biztosítják a nyugodt bérleti viszonyt, és akár maradnának is – így ideális választás befektetési céllal keresőknek is.

Akik első lakásukat vásárolják, most igénybe vehetik a 3%-os kedvezményes Otthon Start támogatást - a teljes folyamatban végig támogatást nyújtok.
Ha pedig a szükséges összeg nem áll rendelkezésre, független hitelcentrumunk (GV Hitel) minden elérhető bank és pénzintézet ajánlatát összehasonlítja és versenyezteti az Ön érdekében – ráadásul teljesen díjmentesen! Szeretném felhívni figyelmét, hogy mennyire fontos az előzetes hitelbírálat megléte is, mielőtt elkötelezi magát! Keressen bizalommal!

Lakás részletei

Ár: 96 650 000 Ft
Méret: 65 négyzetméter
Azonosító: 11571417
Irodai azonosító: 388321
Cím: Óbudai FELÚJÍTOTT, modern panel
Emelet: 3. emelet
Építőanyag: Panel
Fűtés jellege: Távfűtés
Ingatlan állapota: Felújított
Komfort fokozat: Összkomfort
Építési év: 21-50 éves
Tulajdonviszony: Saját
Kilátás: kertre néző
Egész szobák: 3

Egyéb jellemzők

  • Erkély
  • Garázs
  • Lift
  • Pince
  • Tároló

Térkép


Így keressen lakást négy egyszerű lépésben. Csupán 2 perc, kötelezettségek nélkül!

Szűkítse a lakások
listáját
Válassza ki a megfelelő
lakást
Írjon a hirdetőnek
Várjon a visszahívásra