Eladó lakás Budapest III. ker 69 500 000 Ft

Leírás

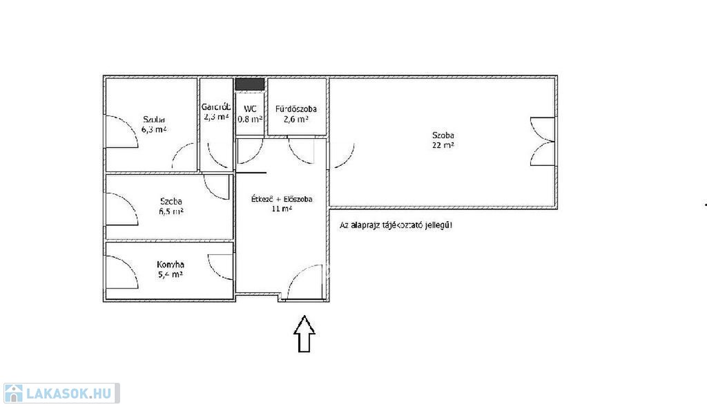
Eladó 57 négyzetméteres jó állapotú X. emeleti, kis erkélyes panellakás Békásmegyeren.
Kiváló elosztású egy plusz két félszobás nagyon praktikus gardróbbal!
Az épület panelprogramban részt vett, homlokzata rendezett. A műanyag ablakok redőnyösek és rovarhálósok. A fűtést és a meleg vizet távhőn kapja a lakás, a radiátorok egyedi mérővel vannak ellátva.
A háznak jelentős megtakarítása van így a fejlesztéseket folyamatosan tervezik, a közös költség emelkedése a közeljövőben nem várható.
A közelben oktatási intézmények, üzletek és bevásárlóközpont is van, a tömegközlekedés kiváló a környéken. Parkolni a ház előtt kialakított parkolóban lehet közterületen ingyenesen. Ezt a remek elosztású lakást pároknak vagy családosoknak ajánlom elsősorban. Az ingatlan tehermentes, szinte azonnal költözhető! Ha érdekesnek találta jöjjön el és tekintse meg élőben is!
Időpont egyeztetéshez hívjon bizalommal!
Teljes körű ügyintézéssel állunk az eladók és a vevők rendelkezésére! A kínálatunkból választott ingatlan finanszírozásához minősített fogyasztóbarát, piaci és kedvezményes hitel- és lízingkonstrukciókat kínálunk (lakásvásárlási hitel, szabad felhasználású hitel, babaváró hitel, CSOK Plusz intézés, Otthonfelújítási Támogatás, egyéb felújítási hitelek). Az adásvételi szerződés megkötéséhez igény szerint megbízható ügyvédi közreműködést biztosítunk, és segítséget nyújtunk az adásvételhez kapcsolódó egyéb ügyek intézéséhez. Kérdéseire az esti órákban és hétvégén is szívesen válaszolok! Ha az új ingatlana megvásárlásához a jelenlegi ingatlanát el kell adnia, abban is szívesen segítünk.
M324741

Lakás részletei

Ár: 69 500 000 Ft
Méret: 57 négyzetméter
Azonosító: 11609134
Irodai azonosító: M324741-5187389
Emelet: 10. emelet
Építőanyag: Panel
Fűtés jellege: Központi (egyedi mérővel)
Ingatlan állapota: Átlagos
Komfort fokozat: Összkomfort
Építési év: 21-50 éves
Kilátás: utcai
Egész szobák: 1
Fél szobák: 2

Egyéb jellemzők

  • Erkély
  • Lift

Térkép


Így keressen lakást négy egyszerű lépésben. Csupán 2 perc, kötelezettségek nélkül!

Szűkítse a lakások
listáját
Válassza ki a megfelelő
lakást
Írjon a hirdetőnek
Várjon a visszahívásra