Eladó lakás Budapest III. ker 69 500 000 Ft

Leírás

Jó adottságú, világos panel lakás Békásmegyer hegy felőli oldalán

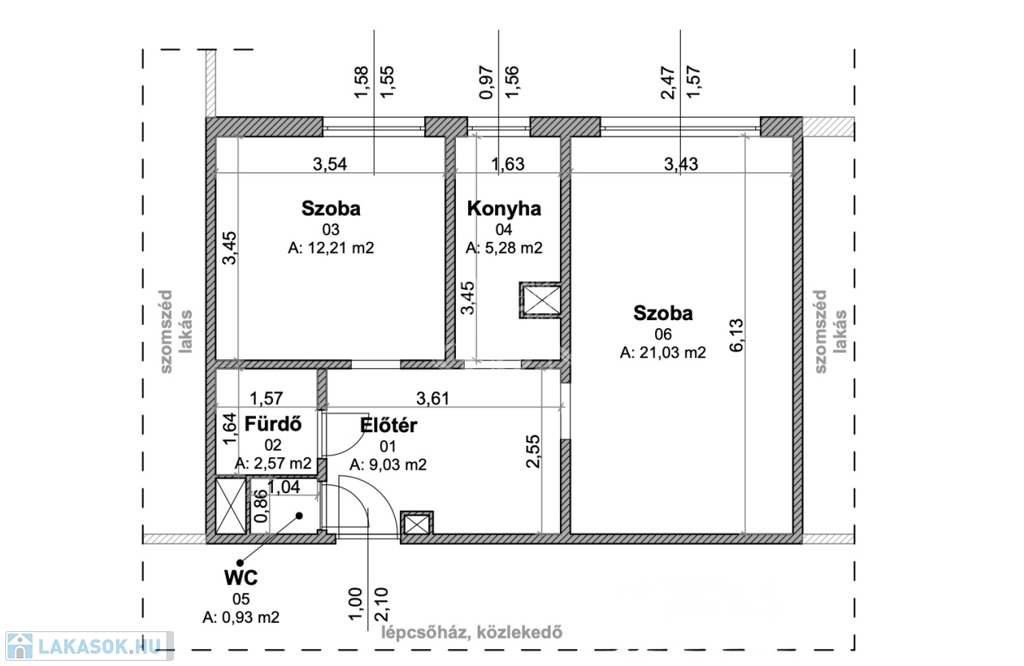
Békásmegyer kedvelt, hegy felőli részén kínálok megvételre egy 51 m²-es, jó állapotú panel lakást, rendezett társasházban. Az elrendezés átgondolt és jól használható: külön fürdő és külön WC, valamint ablakos, világos konyha teszi kényelmessé a mindennapokat.

A keleti tájolás kellemes benapozottságot biztosít, a lakás összhatása rendezett, megkímélt. Nem igényel azonnali beavatkozást, ugyanakkor később könnyen alakítható saját igények szerint.

A környék nyugodt, zöld, mégis jól ellátott: bevásárlási lehetőségek, közlekedés, szolgáltatások rövid sétával elérhetők. A hegy felőli elhelyezkedés miatt a környezet kifejezetten csendes, élhető.

Az ingatlan 3%-os hitellel kompatibilis, így finanszírozási szempontból is kedvező lehetőséget jelent.

Ez egy stabil adottságú lakás jó helyen – érdemes megnézni, ha Békásmegyeren keresel biztos alapokra épülő megoldást.

Lakás részletei

Ár: 69 500 000 Ft
Méret: 51 négyzetméter
Azonosító: 11591134
Irodai azonosító: 391423
Cím: Víziorgona utca
Emelet: 2. emelet
Építőanyag: Panel
Fűtés jellege: Távfűtés
Ingatlan állapota:
Komfort fokozat: Összkomfort
Építési év: 21-50 éves
Tulajdonviszony: Saját
Kilátás: utcai
Egész szobák: 2

Egyéb jellemzők

  • Erkély
  • Garázs
  • Lift
  • Pince
  • Tároló

Térkép


Így keressen lakást négy egyszerű lépésben. Csupán 2 perc, kötelezettségek nélkül!

Szűkítse a lakások
listáját
Válassza ki a megfelelő
lakást
Írjon a hirdetőnek
Várjon a visszahívásra