Eladó lakás Budapest III. ker 229 900 000 Ft

Leírás

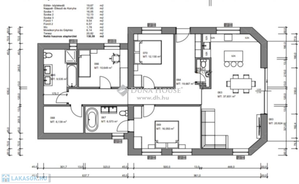
Budapest 3. kerület Csillaghegyen! Örök panorámás! Új építésű! 4 lakásos társasházban! Földszinti, 130 m2,es, teraszos, kertkapcsolatos lakás ELADÓ!

Az ingatlan az alábbi helyiségekből áll: panorámás nappali + konyha, 3 szoba, előszoba, 2 db fürdő +wc, lépcsőtér, erkély, háztartási helyiség.

Alapterület : 120,18 m2 + 20,812 m2 terasz + 250 m2 saját kert. Egyedülálló panoráma! Zöldövezet! A lakás csendes zsákutcában van, de könnyen megközelíthető tömegközlekedéssel is. Az ingatlanhoz tartozik egy térkövezett kocsibeálló, ami benne van az árban. A 4 lakásos társasház 4 szintes, minden szinten 1 lakás helyezkedik el. Külön bejárata van minden lakásnak, így nincs közös helyiség!

Műszaki tartalom:
- 38 cm Porotherm tégla falazat, 10 cm-es grafitos szigeteléssel
- Porotherm béléstestes közbendő födém
- 3 rétegű üvegezéssel ellátott fehér műanyag nyílászárók
- hőszivattyús hűtés-fűtés
- térkövezett kocsibeálló
- elektromos autótöltő előkészítés, motoros alumínium zsaluzia előkészítés, riasztórendszer előcsövezés, mozgásérzékelő, kaputelefon, kábeltévé és internet előkészítés, stb.

Kulcsrakész átadás: 2025. március.

Ha felkeltette érdeklődését, keressen bizalommal!

229900000 Ft

Referencia szám: LK084200

Lakás részletei

Ár: 229 900 000 Ft
Méret: 130 négyzetméter
Azonosító: 11479090
Irodai azonosító: LK084200-4845556
Cím: Budapest 3. ker.i eladó 130 nm-es lakás
Emelet: Földszint
Építőanyag: Tégla
Fűtés jellege: Hőszivattyú
Ingatlan állapota: Épülő
Komfort fokozat: Dupla komfort
Építési év: Új építésű
Egész szobák: 4

Térkép


Így keressen lakást négy egyszerű lépésben. Csupán 2 perc, kötelezettségek nélkül!

Szűkítse a lakások
listáját
Válassza ki a megfelelő
lakást
Írjon a hirdetőnek
Várjon a visszahívásra