Eladó lakás Budapest III. ker 229 900 000 Ft

Leírás

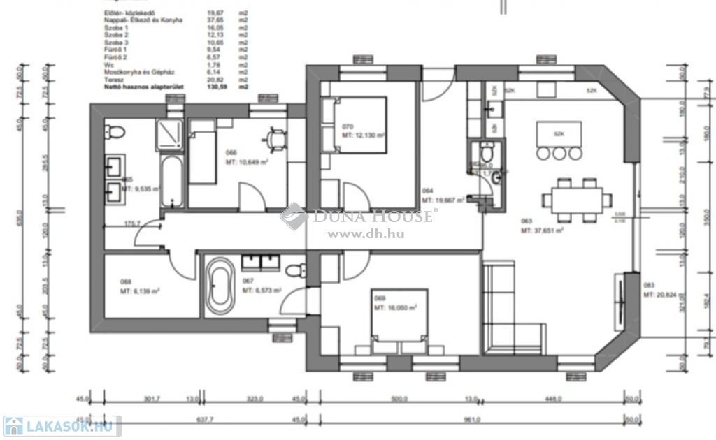
Budapest 3. kerület Csillaghegyen! Örök panorámás! Új építésű! 4 lakásos társasházban! Földszinti, 125 m2,es, teraszos, kertkapcsolatos lakás ELADÓ!Az ingatlan az alábbi helyiségekből áll: panorámás nappali + konyha, 3 szoba, előszoba, 2 db fürdő +wc, lépcsőtér, erkély, háztartási helyiség.Alapterület : 120,18 m2 + 10,41 m2 terasz + 250 m2 saját kert. Egyedülálló panoráma! Zöldövezet! A lakás csendes zsákutcában van, de könnyen megközelíthető tömegközlekedéssel is. Az ingatlanhoz tartozik egy térkövezett kocsibeálló, ami benne van az árban. A 4 lakásos társasház 4 szintes, minden szinten 1 lakás helyezkedik el. Külön bejárata van minden lakásnak, így nincs közös helyiség!Műszaki tartalom:- 38 cm Porotherm tégla falazat, 10 cm-es grafitos szigeteléssel- Porotherm béléstestes közbendő födém- 3 rétegű üvegezéssel ellátott fehér műanyag nyílászárók- hőszivattyús hűtés-fűtés- térkövezett kocsibeálló- elektromos autótöltő előkészítés, motoros alumínium zsaluzia előkészítés, riasztórendszer előcsövezés, mozgásérzékelő, kaputelefon, kábeltévé és internet előkészítés, stb.Kulcsrakész átadás: 2025. február

Referencia szám: LK084200-NOK

Lakás részletei

Ár: 229 900 000 Ft
Méret: 130 négyzetméter
Azonosító: 11471253
Irodai azonosító: LK084200-4831107
Emelet: Földszint
Építőanyag: Tégla
Fűtés jellege: Hőszivattyú
Ingatlan állapota: Épülő
Építési év: Új építésű
Egész szobák: 4

Egyéb jellemzők

  • Kocsibeálló

Térkép


Így keressen lakást négy egyszerű lépésben. Csupán 2 perc, kötelezettségek nélkül!

Szűkítse a lakások
listáját
Válassza ki a megfelelő
lakást
Írjon a hirdetőnek
Várjon a visszahívásra