Eladó lakás Budapest III. ker 213 000 000 Ft

Leírás

Oázis Óbuda szívében – Napsütötte teraszok, elegáns otthonok, kertvárosi hangulat.

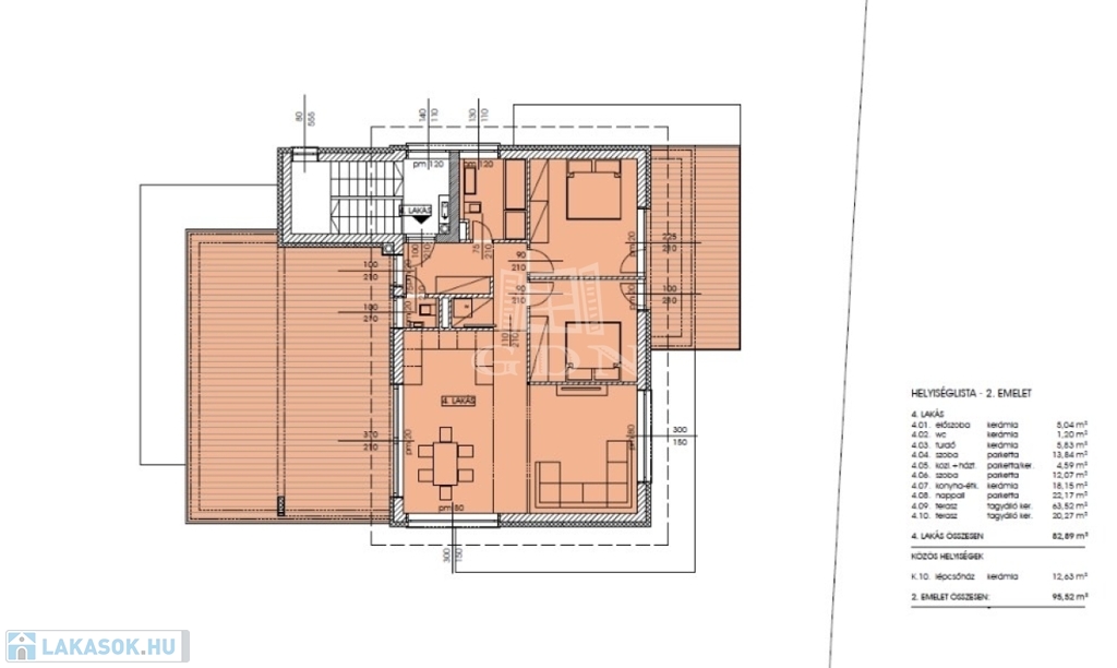
Alapterület: 82,89 m²

Teraszok összesen: 92,64 m²

Ár: 213 M Ft
A teremgarázs ára 8 M Ft, melyet kötelező megvenni

Energetikai besorolás: A+


A beruházásról:

A Kisbojtár Projekt a III. kerület egyik legkedveltebb részén, a Bojtár utca és a Kisbojtár utca találkozásánál épült. A Bécsi és Szentendrei utak között található lakóövezet csendes, barátságos és kertvárosias hangulatú, ugyanakkor remek közlekedési kapcsolatokkal rendelkezik.

Bölcsőde, óvoda, iskolák, valamint több szuper- és hipermarket pár perc alatt elérhetők — így az otthon egyszerre nyugodt és praktikus elhelyezkedésű, ideális választás az igényes otthonkeresők számára.


Az épület és a lakások:

A projekt két épületében összesen 8 lakás került kialakításra:

63 m²-től egészen 83 m²-es nagyteraszos penthouse lakásokig

Földszinten kertkapcsolatos otthonok.

Emeleteken tágas teraszos lakások.

Felső szinteken egy-egy különleges elrendezésű lakás

A pinceszinten teremgarázs-beállók és közös gépészeti helyiségek találhatók. Az épületek kialakítását világos terek, átgondolt alaprajzok, esztétikus és praktikus megoldások jellemzik.


Műszaki tartalom
A+ energetikai besorolás

Daikin levegő–levegő hőszivattyús fűtés, padlófűtéssel

Szobánként 1–1 hűtő-fűtő fancoil

5 légkamrás, 3 rétegű nyílászárók

Elektromos alumínium redőny előkészítés

Nagylapos fürdőszobai burkolatok

15 cm kőzetgyapot homlokzati szigetelés

A korszerű gépészetnek és szigetelésnek köszönhetően egész évben kellemes belső klíma és alacsony fenntartási költség biztosított.


A kínált lakás

Ez a különleges penthouse jellegű, 82,89 m²-es II. emeleti lakás a projekt ékköve. A 92,64 m²-es, körbeölelő terasz páratlan szabadtéri életteret kínál — tökéletes helyszín reggeli kávéhoz, pihenéshez vagy baráti összejövetelekhez.

Az ingatlan azonnal beköltözhető, per- és tehermentes.

Ár: 213 M Ft

Garázs külön megvásárolható: 8 M Ft


Miért különleges?
Exkluzív, kis lakásszámú társasház

Penthouse jellegű lakás hatalmas terasszal

Modern technológia, energiahatékonyság

Kiváló elhelyezkedés, teljes infrastruktúra

Presztízs, értékállóság, remek befektetés

Lakás részletei

Ár: 213 000 000 Ft
Méret: 82 négyzetméter
Azonosító: 11570386
Irodai azonosító: 388133
Cím: Kisbojtár utca
Emelet: 2. emelet
Építőanyag: Tégla
Fűtés jellege: Hőszivattyú
Ingatlan állapota: Kitűnő
Komfort fokozat: Összkomfort
Építési év: Új építésű
Tulajdonviszony: Saját
Kilátás: udvari
Egész szobák: 3

Egyéb jellemzők

  • Erkély
  • Garázs
  • Lift
  • Pince
  • Tároló

Térkép


Így keressen lakást négy egyszerű lépésben. Csupán 2 perc, kötelezettségek nélkül!

Szűkítse a lakások
listáját
Válassza ki a megfelelő
lakást
Írjon a hirdetőnek
Várjon a visszahívásra