Eladó lakás Budapest III. ker 212 900 000 Ft

Leírás

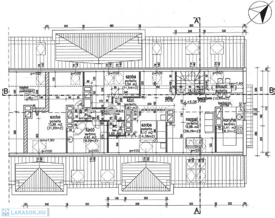
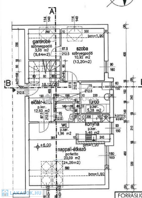
Eladó tágas, 6 szobás, belső kétszintes lakás Csillaghegy zöldövezetében Forrásliget lakóparkban!

Amennyiben olyan otthont keres, ahol a nyugalom, a tágas tér és a praktikum kéz a kézben jár, megtalálta!
Eladóvá vált egy nettó 142 m²-es, bruttó 196 m2-es, duplakomfortos, belső kétszintes, 6 külön bejáratú szobával rendelkező lakás a népszerű Forrásliget lakóparkban, Csillaghegy egyik legzöldebb, legcsendesebb részén.

A lakás főbb jellemzői:
Tágas, világos terek, kiváló beosztás
6 különnyíló szoba ideális nagycsaládosoknak, többgenerációs együttéléshez vagy otthoni munkához
Két fürdőszoba (duplakomfort), gardrób
Kényelmes, világos nappali és étkezős konyha
Zöldövezeti elhelyezkedés madárcsicsergés és friss levegő egész nap
Klimatizált felső szint (2 beépített légkondicionálóval)

Felújítás:
A lakás két éve részleges felújításon esett át az alsó szint teljeskörűen megújult, modern és ízléses kialakítással: új burkolatok, friss festés, korszerűsített konyha és nappali várja az új tulajdonosokat.

A lakóparkról:
Rendezett, csendes környezet, családbarát közösség
Parkosított udvarok, játszóterek
Biztonságos, zárt rendszerű lakópark
Kiváló infrastruktúra:
Pár percen belül elérhető óvoda, iskola, üzletek, gyógyszertár
Kiváló tömegközlekedés (HÉV, busz), de autóval is gyorsan beérsz a belvárosba

Ideális választás családoknak, többgenerációs otthonnak, vagy akár befektetésnek is!

TOVÁBBI KÉRDÉSSEL, VALAMINT MEGTEKINTÉSSEL KAPCSOLATBAN VÁROM HÍVÁSÁT !

212900000 Ft

Referencia szám: LK073644

Lakás részletei

Ár: 212 900 000 Ft
Méret: 145 négyzetméter
Azonosító: 11544918
Irodai azonosító: LK073644-4969563
Cím: Budapest 3. ker.i 145 nm-es lakás eladó
Emelet: 2. emelet
Építőanyag: Tégla
Fűtés jellege: Házközponti (egyedi mérővel)
Ingatlan állapota: Kitűnő
Komfort fokozat: Összkomfort
Építési év: 21-50 éves
Kilátás: panorámás
Egész szobák: 6

Egyéb jellemzők

  • Klíma

Térkép


Így keressen lakást négy egyszerű lépésben. Csupán 2 perc, kötelezettségek nélkül!

Szűkítse a lakások
listáját
Válassza ki a megfelelő
lakást
Írjon a hirdetőnek
Várjon a visszahívásra