Eladó lakás Budapest III. ker 148 900 000 Ft

Leírás

Aranyhegyi lejtőn, déli panorámára tájolt luxus, profi belsőépítész által tervezett PENTHOUSE lakást kínálunk 2 lakásos házban, saját kertrésszel.



A FÖLDSZINTEN - impozáns - nappali-étkező-konyhát terveztünk. Mellé kilépő teraszt építünk, ami a nyári nagy melegekben az észak-keleti, keleti tájolás miatt igazán élvezhető.

Itt kapott helyet egyik fürdőszoba, külön WC-vel.



A közel 150 nm KERTBEN – igény esetén - játszótér, jacuzzi vagy akár úszómedence is építhető.



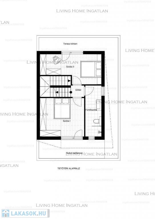
AZ EMELETEN -A lépcsőről felérve, fényárban úszó térbe érkezünk. Itt kapott helyet 2 szoba és egy újabb fürdőszoba.



A tágas 40 nm-es tetőteraszról a Hármas – határhegy gyönyörű vonulatát csodálhatjuk, de akár partikat is rendezhetünk.



A PINCÉBEN - 2 lakás részére- 3 állásos garázs, gépészeti terek és hátul nagy méretű tároló van. Itt biztosítunk teret szauna építésre vagy akár konditerem kialakítására is.



Magas műszaki tartalmat építünk be - mert tudjuk, hogy - a lényeg a részletekben rejlik!



- A fűtést a mennyezeten és a padlóban vezetjük, a hűtést a mennyezeten. Így az otthonunkban télen-nyáron igényeinknek megfelelő állandó hőmérséklet lesz, a fűtési költségek gazdaságosak és – nem mellékes, - a hűtésnél nincsen erős, ránk irányuló hideglevegő befújás. A rendszert környezetkímélő HŐSZIVATTYÚVAL üzemeltetjük.



- A rekuperátoros – hővisszanyerős - szellőztető berendezést – alapszereljük. Ez biztosítja egész évben a megszűrt, friss levegőt. Allergiás időszakban a leghatékonyabb védelem az egészségünk érdekében!



- Okos otthon technológiát előkészítjük.

- Elektromos mozgatású, hőszigetelt redőnyöket beépítjük.



…. és ha ezt még fokozni szeretnéd, akkor megtervezzük és berendezzük a komplett exkluzív belsőt is.

Színek, fények, hangulatok, stílus és egyedi élményt kínáló design. Mind-mind az álmaid és vágyaid alapján!



Ugyanebben az épületben ELADÓ EGY 75 NM-ES LAKÁS IS 99,9 M Ft áron, ugyanilyen magas műszaki tartalommal.

A Lakások 2024 tavaszán költözhetők.


Lakás részletei

Ár: 148 900 000 Ft
Méret: 107 négyzetméter
Azonosító: 11368909
Irodai azonosító: 360651057-1356
Erkély mérete: 40.00 négyzetméter
Építőanyag: Tégla
Fűtés jellege: Egyéb
Ingatlan állapota: Kérdezzen rá a hirdetőtől »
Építési év: Új építésű
Egész szobák: 3

Egyéb jellemzők

  • Erkély
  • Garázs
  • Klíma
  • Pince
  • Kertkapcsolat
  • Tároló
  • Kocsibeálló

Így keressen lakást négy egyszerű lépésben. Csupán 2 perc, kötelezettségek nélkül!

Szűkítse a lakások
listáját
Válassza ki a megfelelő
lakást
Írjon a hirdetőnek
Várjon a visszahívásra