Eladó lakás Budapest III. ker 141 900 000 Ft

Leírás

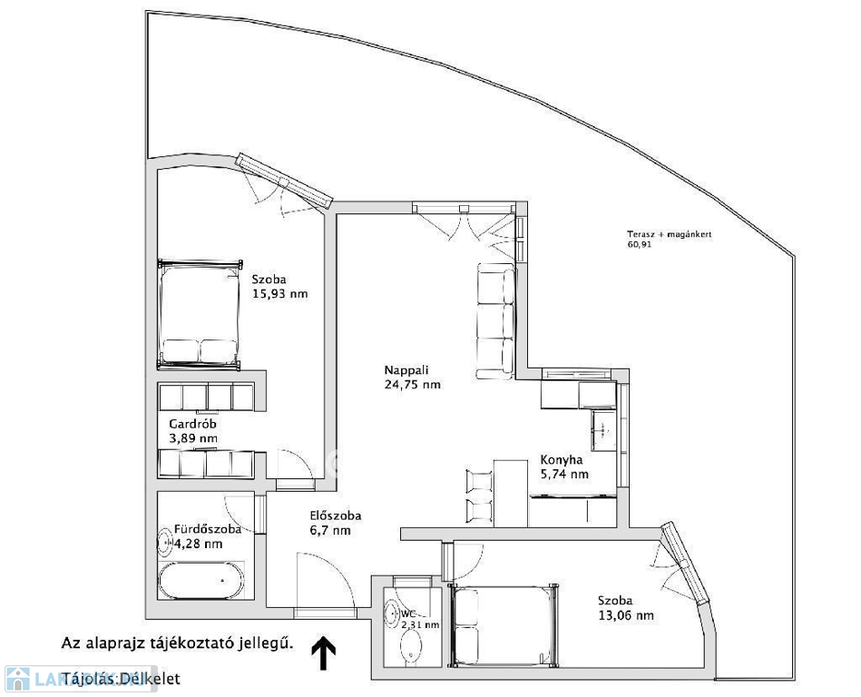
***III. kerület, FOREST HILL lakóparkban egy 77 nm-es, 2 hálószobás, földszinti, ÖRÖKPANORÁMÁS,KERTKAPCSOLATOS lakás eladó!***

A TÁGAS, VILÁGOS, amerikai konyhás nappali délkeleti fekvésű, innen nyílik a 12 nm-es fedett TERASZ és a saját használatú KERT.
A két hálószoba a nappali két oldalán helyezkedik el, így IDEÁLIS elosztású akár családnak vagy home office-hoz is.

Az egyik háló 16 nm, gardróbszobával és kertkapcsolattal, a másik 13 nm, saját 8,5 nm-es burkolt TERASSZAL rendelkezik.
A fürdőszoba kádas, a WC KÜLÖN helyiségben található.

A vételár tartalmazza a beépített, teljesen GÉPESÍTETT konyhabútort és a képeken látható bútorokat is.
A lakás minden helyiségében elektromos alumínium REDŐNY található, a nappali LÉGKONDÍCIONÁLT.
Fűtése házközponti, EGYEDI mérőkkel, radiátoros hőleadással.
A közös költség tartalmazza a 40 nm-es saját kert gondozását vízfogyasztást és a szemétszállítást is.

Igény esetén egy közel 14 nm-es garázs is VÁSÁROLHATÓ az ingatlanhoz.

Ez a lakás TÖKÉLETES választás mindazoknak, akik ZÖLD, csendes környezetre vágynak, mégis elérhető távolságra szeretnének maradni a belvárostól.

Ha ingatlan vásárlásával egy ÉRTÉKÁLLÓ BEFEKTETÉST is szeretne egyben, akkor ez egy remek lehetőség az ön számára.

Az OTP Ingatlanpont, mint egyetlen közvetlen banki hátterű ingatlanközvetítő társaság teljes körű ügyintézéssel és kedvezményes pénzügyi konstrukciókkal áll ügyfelei rendelkezésére!
VIP-szolgáltatást nyújtunk az OTP-hiteltermékek ügyintézésében.
Jogi és pénzügyi segítséget nyújtanak szakértőink, hogy az adásvétel folyamata gördülékeny legyen.

Ha felkeltette érdeklődését az ingatlan, kérem, hívjon bizalommal akar hétvégén is!

Close to the bustling center of Budapest, yet far from the noise of the city!
A 77 sqm, 2-bedroom, ground-floor, panoramic apartment with direct garden access is for sale in the Forest Hill residential park in the 3rd district. The spacious, bright, American-style living room with kitchen is southeast facing, from here you can open up to the 12 sqm covered terrace and the private garden. The two bedrooms are located on either side of the living room, making it an ideal layout for a family or a home office.
One bedroom is 16 sqm, with a wardrobe and garden connection, the other is 13 sqm, with its own 8.5 sqm paved terrace. The bathroom has a bathtub, the toilet is in a separate room.
The purchase price includes the built-in, fully mechanized kitchen furniture and the furniture shown in the pictures. There are electric aluminum shutters in every room of the apartment, the living room is air-conditioned. The heating is central, with individual meters, with radiator heat transfer. The common cost includes the maintenance of the 40 sqm private garden, water consumption and garbage disposal. If desired, a garage of nearly 14 sqm can also be purchased with the property.
This apartment is the perfect choice for all those who want a green, quiet environment, but still want to stay within reach of the city center.

Lakás részletei

Ár: 141 900 000 Ft
Méret: 77 négyzetméter
Azonosító: 11552237
Irodai azonosító: M307669-4993997
Cím: Budapest 3. ker.i eladó 77 nm-es lakás
Emelet: Földszint
Építőanyag: Tégla
Fűtés jellege: Házközponti (egyedi mérővel)
Ingatlan állapota: Kitűnő
Komfort fokozat: Összkomfort
Építési év: 1-5 éves
Kilátás: kertre néző
Egész szobák: 3

Egyéb jellemzők

  • Erkély
  • Garázs
  • Klíma
  • Lift

Térkép


Így keressen lakást négy egyszerű lépésben. Csupán 2 perc, kötelezettségek nélkül!

Szűkítse a lakások
listáját
Válassza ki a megfelelő
lakást
Írjon a hirdetőnek
Várjon a visszahívásra