Eladó lakás Budapest III. ker 139 900 000 Ft

Leírás

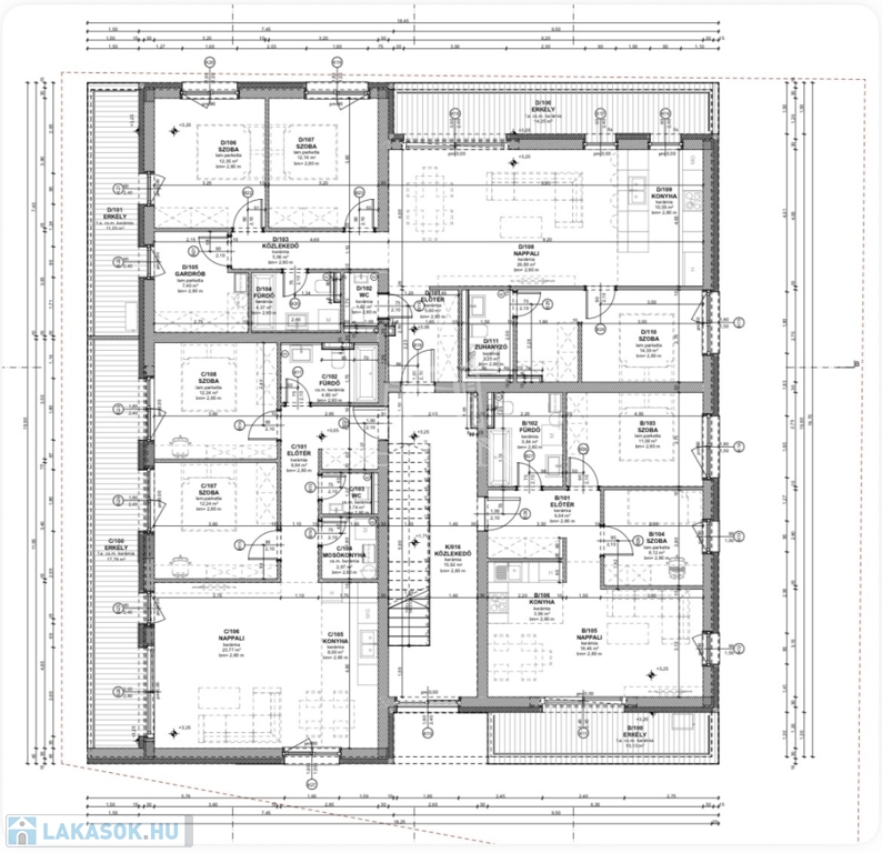
Eladó újépítésű 3 szobás lakás Óbuda kertvárosi részén!


A br. 84 m²-es, első emeleti ingatlanban 74,92 m2-en 2 hálószoba, amerikai konyhás nappali, mósókonyha, külön fürdő és wc , illetve egy 17,78m2-es erkély került kialakításra.

-Előtér: 8,84m2
-Wc: 1,74m2
-Mosókonyha: 2,97m2
-Fürdő: 4,8m2
-Hálószoba: 12,24m2
-Hálószoba: 12,24m2
-Amerikai konyhás nappali: 31,77m2

2026. Májusi átadással tudunk szerződni, így az építkezés előrehaladtával igény szerint alakítható a belső tér.

A lakás modern hőszivattyús fűtési rendszerrel van felszerelve, ami egész évben biztosítja a kellemes hőmérsékletet padlófűtéses hőleadóval. A társasházban 6 lakás került kialakításra amiből jelenleg még emellett egy Penthouse lakás elérhető. Garázs+tároló 10M Ft-ért opcionálisan vásárolható.

ÁR: 139,9M FT

Kérdés, megtekintés eseté keressen bizalommal a +36302767527 telefonszámon.

Lakás részletei

Ár: 139 900 000 Ft
Méret: 84 négyzetméter
Azonosító: 11575994
Irodai azonosító: 389154
Cím: Óbuda
Emelet: 1. emelet
Építőanyag: Tégla
Fűtés jellege: Hőszivattyú
Ingatlan állapota: Kitűnő
Komfort fokozat: Összkomfort
Építési év: Új építésű
Tulajdonviszony: Saját
Kilátás: utcai
Egész szobák: 3

Egyéb jellemzők

  • Erkély
  • Garázs
  • Lift
  • Pince
  • Tároló

Térkép


Így keressen lakást négy egyszerű lépésben. Csupán 2 perc, kötelezettségek nélkül!

Szűkítse a lakások
listáját
Válassza ki a megfelelő
lakást
Írjon a hirdetőnek
Várjon a visszahívásra