Eladó lakás Budapest II. ker 379 000 000 Ft

Leírás

Örökpanorámás luxus penthouse a Rózsadomb szívében – ritka lehetőség Szemlőhegyen

A Rózsadomb egyik legelegánsabb, legkeresettebb részén, Szemlőhegyen, exkluzív rezidenciák környezetében kínálunk megvételre egy valódi ritkaságot: egy 2006-ban épült, mindössze négy lakásos társasház legfelső szintjén elhelyezkedő, teljes budapesti panorámával rendelkező luxuslakást.

A garázsból lifttel közvetlenül a lakás előszobájába érkezünk, ami az exkluzivitás és a kényelem egyik legmagasabb szintjét biztosítja. Innen nyílik a tágas, világos nappali, ahonnan lenyűgöző kilátás tárul elénk egész Budapestre, a Dunára és a Parlamentre. A délies fekvésnek köszönhetően a terek egész nap benapozottak, a hangulat világos és elegáns.

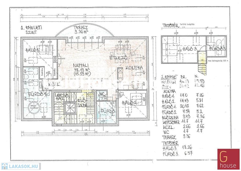
A lakás jelenlegi elrendezése szerint két hálószobával, két fürdőszobával, étkezővel, amerikai konyhával és egy lélegzetelállító panorámás terasszal rendelkezik. Az alaprajz kiváló adottságai lehetővé teszik további hálószobák kialakítását is, így az ingatlan rugalmasan igazítható. Igény esetén koncepció terveket készítek, jövőbeni igényeire szabva.

Az alapterületen felül a lakáshoz tartozik egy 27 m²-es, alacsonyabb belmagasságú tetőtér, amelyben egy további szoba és fürdőszoba került kialakításra. Ideális vendégszobának, gyerekszobának vagy dolgozószobának.

Az ingatlan különleges értéke nemcsak a panorámában és az elhelyezkedésben rejlik, hanem abban is, hogy a Rózsadomb ezen részén hasonló adottságú, liftkapcsolatos, penthouse jellegű lakás rendkívül ritkán kerül piacra – így kiváló ár-érték arányú befektetés is.

Kiegészítő lehetőségek:

* Garázsbeálló: 20 millió Ft
* Tároló: 10 millió Ft
* További garázshely bérelhető: 35.000 Ft / hó

Ez az ingatlan ideális választás azok számára, akik nem szeretnének kompromisszumot kötni sem a panoráma, sem a lokáció, sem a minőség terén – ugyanakkor értékelik a hosszú távon is kiemelkedő értéktartást.

Komoly érdeklődés esetén készséggel állok rendelkezésre további információval.

Lakás részletei

Ár: 379 000 000 Ft
Méret: 101 négyzetméter
Azonosító: 11596823
Irodai azonosító: 14644
Cím: Budapest II. kerület, Sarolta u.
Emelet: 4. emelet
Építőanyag: Tégla
Ingatlan állapota: Kérdezzen rá a hirdetőtől »
Komfort fokozat: Összkomfort
Kilátás: panorámás
Egész szobák: 5

Egyéb jellemzők

  • Erkély
  • Klíma
  • Lift
  • Pince

Így keressen lakást négy egyszerű lépésben. Csupán 2 perc, kötelezettségek nélkül!

Szűkítse a lakások
listáját
Válassza ki a megfelelő
lakást
Írjon a hirdetőnek
Várjon a visszahívásra