Eladó lakás Budapest II. ker 259 000 000 Ft

Leírás

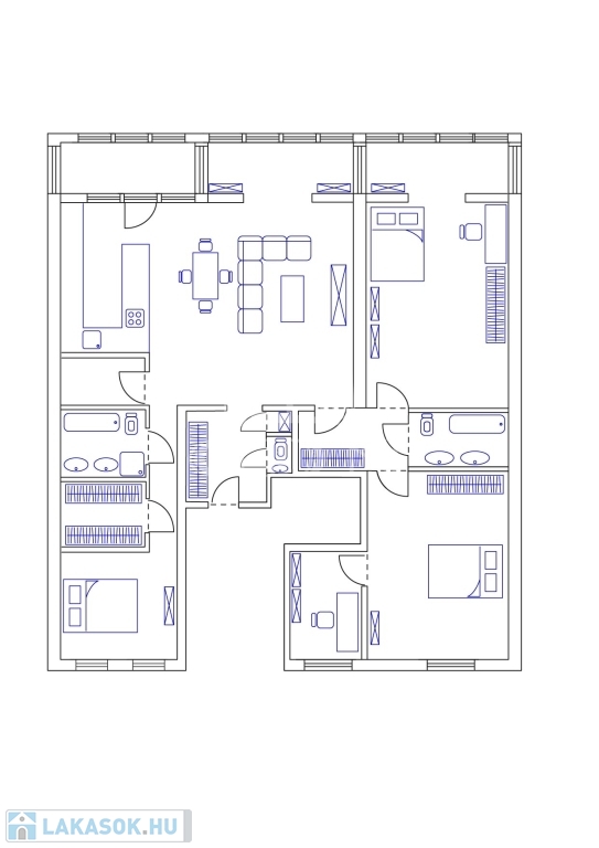
II.kerület Csalogány utcában kínálunk eladásra egy 156 m2-es, beépített ERKÉLYES, JÓ ÁLLAPOTÚ, városi PANORÁMÁS lakást!

Ingatlan jellemzői:
-Épület: Rendezett liftes ház, a lakás az 5. emeleten található
-Szobák: 4+1 szoba
-Nappali: Beépített, modern, teljesen felszerelt konyhával. Tágas és világos, ideális családi összejövetelekhez.
-Hálószobák:  a nappali két oldalán található a három különnyíló hálószoba. Emellett van egy kisebb szoba is, amely irodának vagy vendégszobának is tökéletesen használható.
-Fürdőszoba: Zuhanyzó, kád és két mosdó mindkét fürdőszobában
-Mosókonyha: Külön mosókonyha a háztartási feladatok megkönnyítésére.

Különlegesség:
-Több lakás kialakítása lehetséges: Három különálló lakásra osztható, mivel három helyrajzi számmal rendelkezik az ingatlan. 

A lakáshoz vásárolható garázs is:
-Elhelyezkedés: A földszinten található, közvetlen utcai bejárattal -27 m2-
-Felszereltség: Raktárnak vagy műhelynek is használható, saját villany- és gázórákkal, valamint vízzel felszerelt.
 
Kiváló elhelyezkedése, praktikus elrendezése és a környék magas színvonalú infrastruktúrája miatt ez az ingatlan tökéletes választás nagycsaládosoknak vagy befektetőknek egyaránt. Jöjjön el, és tekintse meg személyesen!

Amennyiben hirdetésem felkeltette érdeklődését, további információra lenne szüksége, hívjon bizalommal!

ID:369785

Lakás részletei

Ár: 259 000 000 Ft
Méret: 156 négyzetméter
Azonosító: 11494388
Irodai azonosító: 379318
Cím: Csalogány utca
Emelet: 5. emelet
Építőanyag: Tégla
Fűtés jellege: Cirkó
Ingatlan állapota:
Komfort fokozat: Dupla komfort
Építési év: 21-50 éves
Tulajdonviszony: Saját
Kilátás: panorámás
Egész szobák: 4
Fél szobák: 1

Egyéb jellemzők

  • Erkély
  • Garázs
  • Lift
  • Pince
  • Tároló

Térkép


Így keressen lakást négy egyszerű lépésben. Csupán 2 perc, kötelezettségek nélkül!

Szűkítse a lakások
listáját
Válassza ki a megfelelő
lakást
Írjon a hirdetőnek
Várjon a visszahívásra