Eladó lakás Budapest II. ker 235 000 000 Ft

Leírás

Luxus élettér!

Az elmúlt évek egyik legkeresettebb zöldövezeti környezetében, Pesthidegkúton - tájvédelmi körzet közvetlen közelében elhelyezkedő örökpanorámás telken - kínálunk eladásra, egy jelenleg épülő ikerház két különálló lakását (garantált átadás szeptember vége).

A számtalan szabadidős porgram mellett, pl. egy játszótér és egy közeli kis tó is ideális pihenési lehetőséget kínál az itt élő családok számára.

A nagyméretű telek és a rajta álló épület egy csendes utcában helyezkeik el.
A családi ház a benne lévő két külön álló lakásból eredően akár társasházi egységként is funkcionálhat.

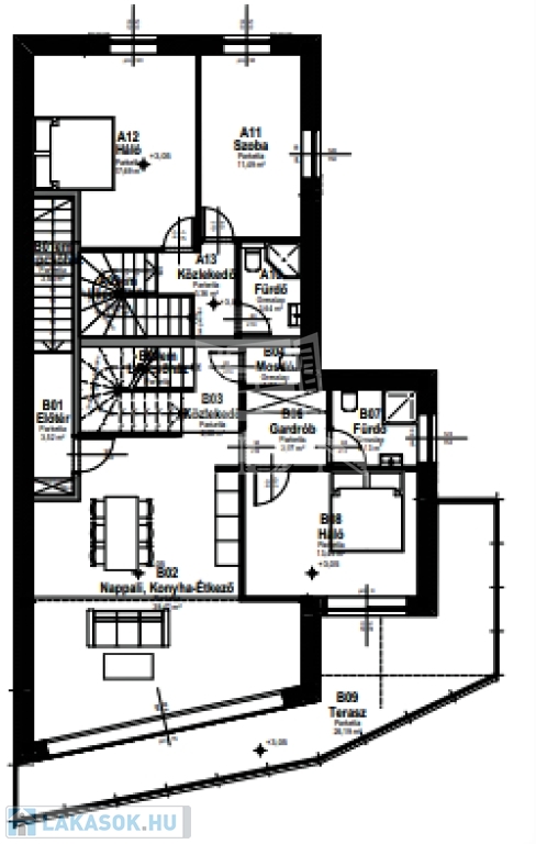
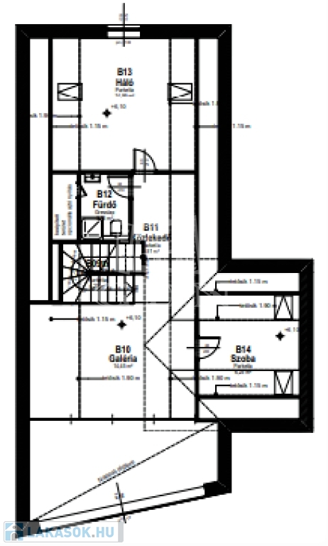
A felső szinten elhelyezkedő 153 m2 nettó alapterületű lakás hatalmas panoráma ablakos, függönyfalas kivitelezéssel készült.

Az alső szinten lévő belső kétszintes 158 m2 nettó alapterületű lakás közvetlen kertkapcsolattal rendelkezik.

Figyelem a két lakás az emeleti szinten akár egybe is nyitható!

Az építkezés jelenleg 50 %-os készültségnél tart, amely bármikor megtekinthető, megismerve ezáltal a burkolásokat, illetve az átgondolt külső-belső kivitelezési munkálatok előkészítésének magas minőségét.

A kivitelező 20 éves tapasztalatának, továbbá számtalan referenciájának (melyeket igény szerint szintén bármikor rendelkezésre bocsájtunk) köszönhetően garantált minőségi kivitelezést kínál. A vevő konkrét - adásvétel - elköteleződésétől számítva a kivitelező 4 hónapra vállalja a befejezést, illetve az ingatlan kulcsrakész átadását!

Az épület elhelyezkedése K-DNy-i tájolású, íly módon
a hatalmas üvegfelületek páratlan optikai látványt és természetközeli élményt biztosítanak az exkluzív élettérnek!

Figyelem, a készültség jelenlegi szintjén (maximum június végéig) a kivitelező nyitott az Ön egyedi igényének, illetve elképzlésének megfelelő belső kialakításokra, sőt akár egy közös befejezésre is!

A jövőbeni költséghatékony fenntarthatóság érdekében a fűtés levegő-hőszivattyús rendszerrel, egyben padló és mennyezet hűtéssel kerül beépítésre.

Egyéb extrák:

- elektromos alumínium redőny,
- elektromos szekcionált Hörmann garázskapuk,
- riasztó rendszer kiépítés,
- hűtő-fűtő klíma,
- fürdőkben kiegészítő törölköző szárítók,
- fényezet egyedi beltéri nyílászárók,
- üvegkorlát,
- kiépített kaputelefon.

Bővebb műszaki tartalmat igény szerint küldök!

Lakás részletei

Ár: 235 000 000 Ft
Méret: 153 négyzetméter
Azonosító: 11417999
Irodai azonosító: 369200
Cím: Pesthidegkút
Emelet: 1. emelet
Építőanyag: Tégla
Fűtés jellege: Hőszivattyú
Ingatlan állapota: Kitűnő
Komfort fokozat: Összkomfort
Építési év: Új építésű
Tulajdonviszony: Saját
Kilátás: panorámás
Egész szobák: 5

Egyéb jellemzők

  • Erkély
  • Garázs
  • Lift
  • Pince
  • Tároló

Térkép


Így keressen lakást négy egyszerű lépésben. Csupán 2 perc, kötelezettségek nélkül!

Szűkítse a lakások
listáját
Válassza ki a megfelelő
lakást
Írjon a hirdetőnek
Várjon a visszahívásra