Eladó lakás Budapest II. ker 190 000 000 000 000 Ft

Leírás

Luxus életérzés a természet ölelésében – modern műszaki tartalommal Budapest II. kerületében!

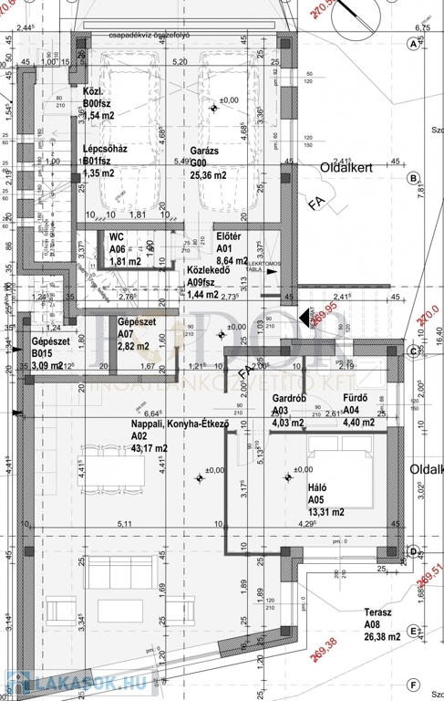
Budapest II. kerületének egyik legkedveltebb, exkluzív részén, Pesthidegkút–Ófalu csendes, zöldövezeti környezetében kínálunk megvételre egy kifinomult műszaki megoldásokkal megépített, kétlakásos, újépítésű, társasház belső két szintes, amerikai-konyhás nappali + 3 szoba, 156m2-es, összkomfortos, földszinti lakását.

Ez az otthon tökéletes választás azok számára, akik a modern technológia nyújtotta komfortot és az elegáns, természetközeli életérzést egyaránt fontosnak tartják.

Átgondolt térszervezés – funkcionalitás és elegancia

A lakás belső kialakítása a praktikum és a letisztult luxus jegyében született:

Földszinti lakószint (117m²):
• tágas nappali amerikai konyhával és étkezővel
• előtér és közlekedő
• mosdó
• hálószoba
• gardrób
• fürdőszoba WC-vel
• külön gépészeti helyiség
• belső lépcsőház
• garázs
• hangulatos terasz kapcsolattal a kert felé

Emeleti lakószint (39m2):
• közlekedő
• 2 szoba
• fürdőszoba WC-vel

Prémium műszaki tartalom – a jövő otthona már ma

Az ingatlan kiemelkedő műszaki színvonala hosszú távon biztosít alacsony fenntartási költséget és maximális komfortot:

Szerkezet
o 30 cm-es Porotherm főfalak
Energiahatékony gépészet
o DAIKIN ALTHERMA 6 kW levegő-víz hőszivattyú
o padlófűtés + mennyezeti hűtés-fűtés rendszer
o törölközőszárítós radiátorok
o beépített 180 literes HMV tartály
o H tarifás villanyóra a kedvező üzemeltetésért
Hűtés
o külön klímarendszer a maximális komfort érdekében
Nyílászárók és biztonság
o Schüco Classic, 3 rétegű üvegezésű műanyag nyílászárók
o kívül elegáns antracit, belül letisztult fehér kivitel
o RC3 biztonsági osztályú bejárati ajtó
Árnyékolástechnika
o motoros, rádióvezérlésű alumínium redőnyök
o integrált szúnyoghálóval
o SMART rendszer előkészítéssel
Burkolatok és szaniterek
o prémium melegburkolatok úsztatott aljzaton, padlófűtéshez optimalizálva
o Duravit D-Code szaniterek
o Hansgrohe csaptelepek
Elektromos rendszer
o 3 fázisú ellátás lakásonként
o FI relé és túlfeszültség védelem
o nagyfogyasztók külön áramkörön
Kényelem és biztonság
o Hörmann elektromos, szekcionált garázskapu
o Paradox SP6000 riasztórendszer kültéri szirénával
o Legrand kaputelefon rendszer
Lokáció – ahol a nyugalom és a presztízs találkozik
A Budai-hegység lábánál elhelyezkedő ingatlan különleges életminőséget kínál:
• tiszta levegő, csend és zöld környezet
• közvetlen közelben erdők, túraútvonalak, természetvédelmi területek
• családbarát infrastruktúra: iskolák, óvodák, nemzetközi intézmények
• kiváló közlekedés, mégis forgalomtól mentes környezet

Kulcsrakész állapot várható átadás: 2026. július 30

Ez az ingatlan nem csupán egy otthon – hanem egy tudatosan megtervezett, prémium életforma megtestesítője, ahol a modern technológia és a természet közelsége tökéletes harmóniában él együtt.

Irodánk teljes körű segítséget nyújt:
•díjmentes hitelügyintézés
•CSOK Plusz tanácsadás
•banki partneri háttér a vásárlás minden lépésében

Az alaprajz és a leírás tájékoztató jellegű.

Lakás részletei

Ár: 190 000 000 000 000 Ft
Méret: 156 négyzetméter
Azonosító: 11611700
Irodai azonosító: 351916
Emelet: 1. emelet
Építőanyag: Tégla
Ingatlan állapota: Kitűnő
Komfort fokozat: Összkomfort
Építési év: Új építésű
Egész szobák: 3

Egyéb jellemzők

  • Erkély
  • Garázs
  • Lift
  • Kertkapcsolat

Így keressen lakást négy egyszerű lépésben. Csupán 2 perc, kötelezettségek nélkül!

Szűkítse a lakások
listáját
Válassza ki a megfelelő
lakást
Írjon a hirdetőnek
Várjon a visszahívásra