Eladó lakás Budapest I. ker, Tabán, 129 900 000 Ft

Leírás

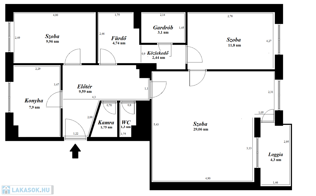
Eladó az I. kerületben a Tabánban, közvetlenül a Budai Vár lábánál a Dózsa György téren egy jó állapotú, liftes, gondozott nagy kerttel rendelkező társasházban lévő III. emeleti, 83nm-es, 3 szoba + konyhás, felújítandó állapotú, DNY-i fekvésű, klímás, napfényes lakás loggiával és szép kilátással a Naphegy illetve a Budai Vár irányába.

A beosztás jelenleg is kiváló, a szobák különnyílóak de a felújítás során akár tovább is alakítható pl. amerikai konyhás nappali + 3 hálószobássá is, átalakítási javaslatok a képek között nemsokára elérhetőek lesznek.

A közös költség 27.851.Ft, a fűtést egyedi méréses távfűtés biztosítja.

Az ingatlanhoz tartozik egy pincerész is.

A környék kiváló infrastruktúrával rendelkezik, bevásárlási lehetőségek, üzletek, iskolák, rendelők, a főbb tömegközlekedési lehetőségek (több villamos és buszjárat) a közelben közvetlenül is elérhetőek.

A Naphegy, Tabán, Budai Vár és közeli Duna-part remek kikapcsolódási és sportolási lehetőséget nyújt.

Irodánk ingyenes hiteltanácsadással áll ügyfeleink rendelkezésére. A VEVŐINK RÉSZÉRE A KÖZVETÍTÉS DÍJMENTES. A hirdetésben szereplő adatok tájékoztató jellegűek!

Lakás részletei

Ár: 129 900 000 Ft
Méret: 83 négyzetméter
Azonosító: 11592568
Cím: Dózsa György tér
Városrész: Tabán
Emelet: 3. emelet
Építőanyag: Tégla
Fűtés jellege: Távfűtés
Ingatlan állapota: Felújítandó
Komfort fokozat: Összkomfort
Építési év: 50 évesnél régebbi
Elhelyezkedés: Társasház
Tulajdonviszony: Saját
Kilátás: panorámás
Kert: Közös telek
Egész szobák: 3

Egyéb jellemzők

  • Erkély
  • Garázs
  • Klíma
  • Lift
  • Pince
  • Kertkapcsolat
  • Kocsibeálló

Térkép


Így keressen lakást négy egyszerű lépésben. Csupán 2 perc, kötelezettségek nélkül!

Szűkítse a lakások
listáját
Válassza ki a megfelelő
lakást
Írjon a hirdetőnek
Várjon a visszahívásra