Eladó lakás Budaörs 325 000 000 Ft

Leírás

Ingatlanosok kérem ne keressenek!
Amennyiben szeretne zöldövezetben, családi házas környezetben, mégis közel a városhoz élni valószínűleg ilyen otthont keres. Eladó családi házam Budaörs legszebb helyén a Verseny utcában található (a zsákutca végében, tehát nincs átmenő forgalom az utcában).
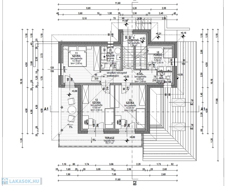
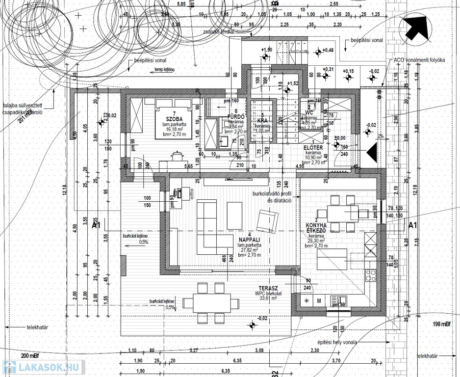
Tájolása tökéletes, reggeltől délutánig beragyog a nap. Az 51 m2-es nappaliba a hatalmas teraszajtóknak köszönhetően kora reggeltől délutánig besüt a nap. A nappaliból és a konyhából is közvetlenül kiléphetünk a 34 m2-es teraszra, ahol a család igazi kényelemben együtt élvezheti a jó levegőt, a kertet és madárcsicsergést. A földszinten található egy önálló fürdőszobával (wc, zuhany, kézmosó) rendelkező szoba, tároló, előszoba, wc és egy 51 m2-es amerikai konyhás nappali. A földszinti hálószoba kiválóan alkalmas vendégszobának, szülői hálónak, idős szülő számára, vagy akár irodának. A kert gondozásához nagy segítséget nyújt az automata öntözőrendszer, és a vízgyűjtő, ami a lehullott csapadékot tárolja az öntözésig.
A biztonságról kamera és riasztórendszer gondoskodik.
A konyha sütővel, mosogatógéppel és hűtőszekrénnyel felszerelt. A 23m2-es konyha és étkező elegendő helyet biztosít a főzéshez.
A melegvizet és fűtést kombi cirkó biztosítja. A fűtés típusa padlófűtés. A szobákban található termosztátoknak köszönhetően minden szobában egyedi igény szerint lehet a hőmérsékletet szabályozni.
A ház Silka téglából épült, és 15 cm vastag EPS szigetelése van, ami a jó hőszigetelést biztosítja, továbbá a (Zehnder) hővisszanyelő szellőzőrendszer gondoskodik a friss levegőről, anélkül, hogy szellőztetéssel a nem kívánt hideget vagy meleget beengednénk.
Az ingatlan Gree Lomo klímával felszerelt, így a meleg nyári napokon gond nélkül tudjuk a szobák hőmérsékletét kellemesre hűteni.
Az ingatlanon elhelyezett napelemeknek köszönhetően ennek a jól felszerelt, kényelmes, tökéletes lokációval rendelkező otthonnak minden előnyét minimális áram használattal élvezhetjük.
Az emeleten található hálószobákból kettő déli, egy délnyugati tájolású, erkélykapcsolattal. Az északi oldalon található zuhanyzóval, fürdőkáddal és dupla mosdóval rendelkező fürdőszoba, wc és egy háztartási helyiség. Ebben mosógépnek és szárítógépnek is elegendő hely van.
Nyílászárók anyagában színezett, 6 kamrás műanyagból készültek (hőátbocsátási tényező U = 0,95 W/m2K), 3-rétegű melegperemes üvegezéssel. Az ablakokon az északi oldalon redőnyök, a déli oldalon zsalúziák találhatók. Minden szobában egy ablakon szúnyogháló biztosítja, hogy anélkül szellőztessen, hogy a bogarak bejövetelétől kelljen tartania.
Az önálló kertrészben a kényelmes terasz és zöld terület mellett két autó számára saját kocsibeálló is kialakításra került.
A környék kiváló infrastruktúrával rendelkezik. A közelben iskola, óvoda, bevásárlási lehetőség is rendelkezésre áll (az óvodák közül az egyik most épül, hamarosan átadják). Budaörsön ingyenes helyi buszjárat van, ami többek között az iskolába járást is nagyon megkönnyíti.
Ez az otthon ideális ahhoz, hogy a fárasztó hétköznapok után magas szintű kényelemben pihenhesse ki magát.
Amennyiben elnyerte tetszését és szívesen megnézné várom jelentkezését! Ingatlanosok kérem ne keressenek!

Lakás részletei

Ár: 325 000 000 Ft
Méret: 175 négyzetméter
Azonosító: 11595470
Cím: Verseny utca 25
Erkély mérete: 19.00 négyzetméter
Rezsi: 15 000 Ft/hó
Építőanyag: Tégla
Fűtés jellege: Cirkó
Ingatlan állapota:
Komfort fokozat: Luxus komfort
Építési év: 6-10 éves
Tulajdonviszony: Saját
Bútorozott: Nem bútorozott
Kilátás: panorámás
Kert: Saját kert
Egész szobák: 5
Nappalik: 1

Egyéb jellemzők

  • Erkély
  • Garázs
  • Klíma
  • Lift
  • Pince
  • Kertkapcsolat
  • Tároló
  • Kocsibeálló

Térkép


Így keressen lakást négy egyszerű lépésben. Csupán 2 perc, kötelezettségek nélkül!

Szűkítse a lakások
listáját
Válassza ki a megfelelő
lakást
Írjon a hirdetőnek
Várjon a visszahívásra