Eladó lakás Balatonföldvár 83 000 000 Ft

Leírás

Bútorozott Luxuslakás Eladó Balatonföldváron – Azonnal költözhető - Kedvező Céges Hitelkonstrukcióval

Fedezze fel Balatonföldvár legújabb prémium társasházát, ahol 1-től 5 szobás, modern kivitelezésű lakások várják Önt! A déli part népszerű üdülőhelyén található ingatlan tökéletes választás mind saját célra, mind befektetésként. Az épület felsőbb szintjein lévő lakások tágas teraszairól lenyűgöző balatoni panorámában gyönyörködhet, míg a földszinti lakásokhoz privát kertrész tartozik.

A lakópark nyugalmas környezetét a hatalmas, parkosított kert és a kültéri medence biztosítja, így ideális mind családok, mind azok számára, akik kiemelkedő hozamú befektetést keresnek.

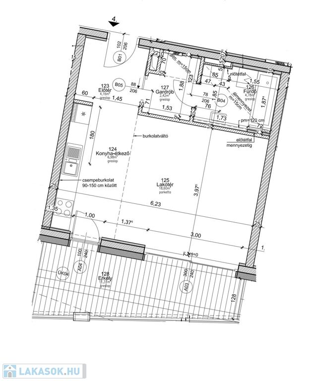
M-1.4 lakás
Ez az DK-i tájolású lakás 36,94 m²-es összterülettel rendelkezik, amely magában foglal:

Előteret (4,16 m²)
Gardrób (2,42 m²)
Fürdőszobát (4,78 m²)
Konyhát és étkezőt (6,98 m²)
Nappalit (18,60 m²)

+ 11,31 m²-es erkélyt

Kivitelezés és felszereltség
A kivitelező a megszokott magas színvonalat és funkcionalitást helyezte előtérbe. A lakások modern, hőszivattyús fűtési és hűtési rendszerrel, valamint korszerű gépészeti megoldásokkal felszereltek.

Az épületben összesen 8 szint található (pinceszint, földszint + 6 emelet), ahol 56 luxuslakás, autóbeállók és tárolók kerültek kialakításra. Az autóbeállók és tárolók a pinceszinten vagy a kertben vásárolhatók meg. A társasházban 13 fős lift szolgálja a lakók kényelmét.

Elhelyezkedés
A társasház elhelyezkedése kiváló: a Balaton partja mindössze 100 méterre található, a környék infrastruktúrája pedig kivételes. Minden fontos szolgáltatás, bolt sétatávolságra elérhető, a déli part legnagyobb kikötője pedig 3 perces sétával megközelíthető.

További információ
Bankfüggetlen hitelcentrumunk segítséget nyújt a hitelügyintézésben. Az ingatlanok megtekintése kizárólag előre egyeztetett időpontban lehetséges. Telefonáljon és kérjen időpontot!
(További képekért és információkért kérem hívjon!)

Lakás részletei

Ár: 83 000 000 Ft
Méret: 37 négyzetméter
Azonosító: 11418512
Irodai azonosító: 076115
Erkély mérete: 11.00 négyzetméter
Építőanyag: Tégla
Fűtés jellege: Cirkó
Ingatlan állapota: Kitűnő
Komfort fokozat: Összkomfort
Egész szobák: 1
Nappalik: 1

Egyéb jellemzők

  • Erkély
  • Garázs
  • Klíma
  • Lift
  • Pince
  • Kertkapcsolat

Így keressen lakást négy egyszerű lépésben. Csupán 2 perc, kötelezettségek nélkül!

Szűkítse a lakások
listáját
Válassza ki a megfelelő
lakást
Írjon a hirdetőnek
Várjon a visszahívásra