Eladó lakás Balatonföldvár 102 270 000 Ft

Leírás

Várható átadás: 2028. I. negyedév

KEDVEZŐ FIZETÉSI ÜTEMEZÉS!
A végleges adás-vételi szerződés aláírásakor a vételár 10%-át, a fennmaradó 90%-ot pedig a műszaki átadásra való felhíváskor esedékes megfizetnie.

ELHELYEZKEDÉS:

Az új lakópark a Balaton déli partján elhelyezkedő Balatonföldváron valósul meg a település délkeleti részén. A balatoni magasponton fekvő telek a Kossuth Lajos utca és a Túra út között helyezkedik el és az utóbbi felől lesz megközelíthető.
A megjelölt területen a Beruházó modern architektúrájú épületegyüttesbe helyezi el a tervezett lakásokat, mely megjelenését, megformálását a környezeti adottságok (elhelyezkedés, kilátás) alakították.

ÉPÜLET:

A társasház tervezésénél szerettünk volna egy, a Balaton bauhaus építészetéből táplálkozó, modern formaelemekkel dolgozó épületet létrehozni. Mivel az épülettömege nagy, kifejezetten fontos volt, hogy sok erkélylemezzel, elvékonyodó beton pengékkel strukturáljuk a házat. Zöldmezős beruházás, de a városépítészeti koncepció szerint a területre egy többemeletes, társasházas építészeti környezet lesz jellemző, amibe a tervezett épület is illeszkedik.
Az épületegyüttes a földfelszín alatt, a pinceszinten (parkolószinten) egy tömeget képez, mely a földfelszín felett három épületszárnnyá (lépcsőházzá) válik szét. Az „A”, „B” és „C” lépcsőházat tartalmazó épületrészek megegyezően a közös pinceszint mellett fsz+3 emelet+tetőterasz magasak.
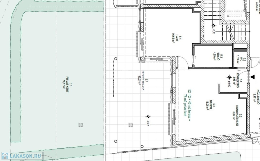
Az épületbe 73 lakás kerül megépítésre. A lakásokhoz mindegyik szárnyon burkolt kialakítású lapostetős teraszok készülnek. A földszinti lakásokhoz a teraszok mellett magánhasználatú kertrészek is csatlakoznak, a harmadik emeleten pedig épületszárnyanként 2-2 lakáshoz egy saját használatú zöldtetős tetőterasz is kapcsolódik.
Az épületszárnyak bejáratai a földszintről, az épületrészek között elhelyezkedő közös sétányok felől nyílnak, illetve közvetlenül pinceszintről is elérhetőek. A parkolószintre a ki-, és bejáratot a személygépkocsik számára a bekötő útra vezető rámpák biztosítják.
A közös pinceszinten, mélygarázsban 78 db parkolóhely lesz kialakítva.

KERT:
A földszinti lakásokhoz különböző alapterületű, kizárólagos használatú kertek tartoznak, melyeket kertépítészeti eszközök határolnak el a park-szerűen kialakított, közös használatú kertrészektől. Mind a közös, mind a kizárólagos használatú kertek növényzettel telepítettek.
Az épületszárnyak közötti sétányokon burkolt terek és kiemelt kazettákban elhelyezett intenzív zöldtetők kerülnek kialakításra. A Balaton felé néző közös használatú kertrészben pedig egy szintén közös használatú medence is helyet kap.
Az épülettömbök tetején szárnyanként 2-2 részre osztott terasztetők helyezkednek el. A tetők zárófödémét burkolt kialakítású tetők és extenzív zöldtetők alkotják.

Felszíni beálló: 2.6MFt
Teremgarázs beállóhely: 6.4MFt

Lakás részletei

Ár: 102 270 000 Ft
Méret: 52 négyzetméter
Azonosító: 11477649
Irodai azonosító: 378167
Cím: Magaspart A005
Emelet: Földszint
Építőanyag: Tégla
Fűtés jellege: Hőszivattyú
Ingatlan állapota: Kitűnő
Komfort fokozat: Összkomfort
Építési év: Új építésű
Tulajdonviszony: Saját
Kilátás: kertre néző
Egész szobák: 2

Egyéb jellemzők

  • Erkély
  • Garázs
  • Lift
  • Pince
  • Tároló

Térkép


Így keressen lakást négy egyszerű lépésben. Csupán 2 perc, kötelezettségek nélkül!

Szűkítse a lakások
listáját
Válassza ki a megfelelő
lakást
Írjon a hirdetőnek
Várjon a visszahívásra