Eladó lakás Balatonalmádi 95 000 000 Ft

Leírás

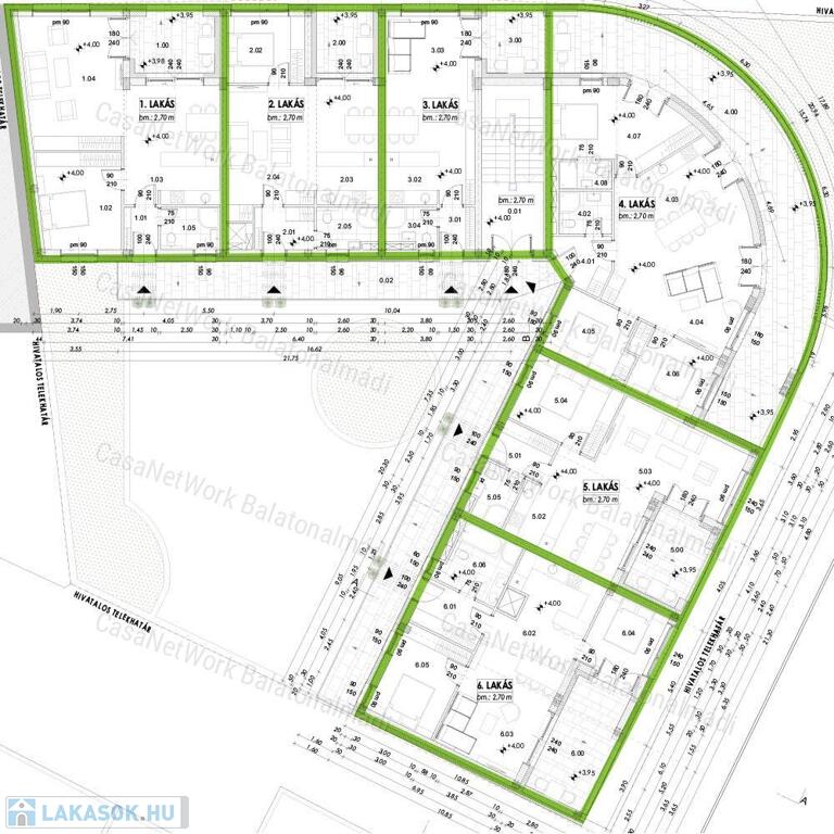
A CasaNetWork Balatonalmádi Ingatlaniroda eladásra kínálja az 1883-as számú, kivételes tulajdonságokkal bíró strandközeli, belvárosi luxuslakását Balatonalmádiban!

 

A balatonalmádi új építésű lakás jellemzői:

- 51,54 m2 lakótér + 6,96 m2 loggia

- egyedülálló lokáció: Balatonalmádi központi részén épül meg az épület, nagyon közel minden fontos létesítményhez, mégis ősfás ligetek szomszédságában; a város lendülete szinkronban a természet nyugalmával

- 2025 őszén veszi kezdetét a kivitelezés, a tervezett befejezés 2027.

- a társasházban 12 lakás kerül kialakításra

- óriási terasz, csodás panoráma, exkluzív környezet ... a legfelső szint penthouse luxuslakása

- az épület földszintje ad helyet a szintén eladásra kínált étteremnek és kávézónak, melyek központi elhelyezkedésüknek és színvonalas kivitelezésüknek köszönhetően a gasztronómiai élmények és a társasági élet meghatározó elemévé válhatnak Balatonalmádiban  

- kivételes alkalom: tradicionális balatoni vízparti nyaralóhely belvárosában új építésű lakást vásárolni 

- a Balaton északi oldalának leghosszabb partszakaszával rendelkező strandja, a Wesselényi strand 250 méterre található

- a centrum új, értékálló lakóházának megalkotásakor a környezet kímélése kiemelt jelentőséggel bír

- igényes kivitelezés, minőségi alapanyagok

- hőszivattyúval hűtött-fűtött légterek, korszerű alumínium nyílászárók az ideális hang- és hőszigetelésért

- optimális arányainak köszönhetően bármilyen stílusú igényes, modern otthon vagy nyaraló válhat belőle

- kiváló lehetőség saját célra vagy befektetésnek 


Amennyiben a CasaNetWork Balatonalmádi Ingatlaniroda által hirdetett balatonalmádi lakás, vagy bármely a kínálatunkban található ingatlan felkeltette érdeklődését, kérem  hívjon a megadott telefonszámon! 

Schultheisz Brigitta
vezető ingatlan-képviselő
+36 20 250 4403

 

Vásárolna, de nincs rá keret? Kollégám díjmentes, banksemleges hitelügyintézéssel áll rendelkezésére.


CasaNetWork -  A civilizált ingatlanértékesítés artériája!


Lakás részletei

Ár: 95 000 000 Ft
Méret: 55 négyzetméter
Azonosító: 11568925
Irodai azonosító: 163701883
Emelet: 1. emelet
Építőanyag: Tégla
Ingatlan állapota: Kitűnő
Egész szobák: 2

Így keressen lakást négy egyszerű lépésben. Csupán 2 perc, kötelezettségek nélkül!

Szűkítse a lakások
listáját
Válassza ki a megfelelő
lakást
Írjon a hirdetőnek
Várjon a visszahívásra