Eladó lakás Balatonalmádi 117 000 000 Ft

Leírás

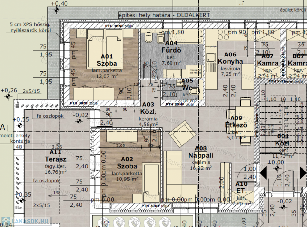
A veszprémi CasaNetWork iroda eladásra kínálja a 2415-ös számú ingatlanját Balatonalmádiban csendes, nyugodt helyen.

-A "B" INGATLAN FŐBB JELLEMZŐI:

-Új építésű lakás

-2 szoba plusz nappali

-külön fürdő és WC

-átadás várhatóan 2025 decemberében

-az ingatlan fűtéséről, hűtéséről, és meleg víz ellátásáról hőszivattyú gondoskodik.

-a terasz a lakásból is elérhető

-kizárólagos használatú kert

-elektromos kapunyitás

-parkolás az udvaron térkövezett parkolóban 

-3 rétegű üvegezés

-alumínium redőnyök

-központ, strand, iskola, bevásárlási lehetőség 1500 méteren belül

Balatonalmádi egy kedvelt és folyamatosan fejlődő település. A Balaton és a Bakony közelsége remek lehetőség a befektetésre és a nyugodt életre.

Érdemes személyesen is megtekinteni, hogy jobban megismerhesse a helyet és annak lehetőségeit. Ha bármilyen kérdése van, szívesen állok rendelkezésére!

Az ingatlan vásárlásához hitel igényelhető!


Amennyiben a  CasaNetWork által kínált ÜZLETHELYISÉG vagy bármely a kínálatunkban található családi ház, téglalakás, új építésű lakás vagy akár telek/földterület  felkeltette érdeklődését, forduljon hozzám bizalommal.

 Béndek Péter - Ingatlan-képviselő

+36 20 420 8120

 CasaNetWork -  A civilizált ingatlanértékesítés artériája!

 Amennyiben hitelben is gondolkodik, kollégám díjmentes, bank semleges ügyintézéssel áll rendelkezésére. 


Lakás részletei

Ár: 117 000 000 Ft
Méret: 71 négyzetméter
Azonosító: 11573997
Irodai azonosító: 156202415
Emelet: Földszint
Építőanyag: Tégla
Ingatlan állapota: Kitűnő
Egész szobák: 3

Így keressen lakást négy egyszerű lépésben. Csupán 2 perc, kötelezettségek nélkül!

Szűkítse a lakások
listáját
Válassza ki a megfelelő
lakást
Írjon a hirdetőnek
Várjon a visszahívásra