Eladó lakás Balatonalmádi 112 631 220 Ft

Leírás

Balatonalmádiban, 2500 m2 telken, prémium lakóparkban, emelt szintű fűtéskész állapotban, vízpart közeli, exklúzív, modern lakások eladóak.

Várható befejezés: 2026. június

Az ingatlanok kiválóan alkalmasak állandó lakhatásra, nyaralónak de befektetésnek is.

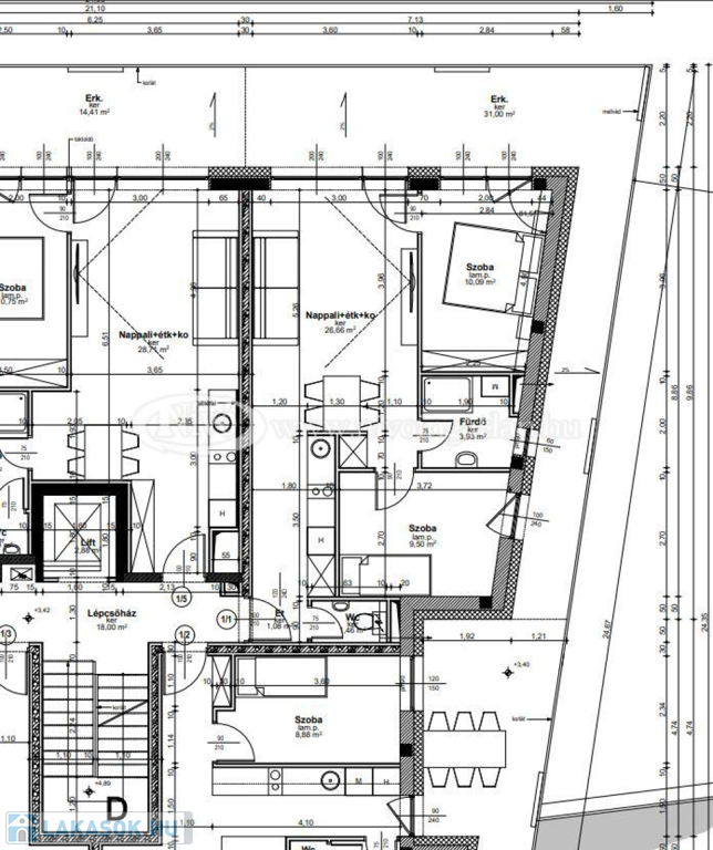
A projektben 4 db, liftes, 4 szintes tömb épül (A,B,C,D), a földszinten üzletekkel, mélygarázzsal (B,C,D épületben) és felszíni parkolóval, tárolóval, parkosítva.

A hirdetésben szereplő konkrét lakás:
- D épület, 4-es lakás
- 1. emeleti, 1+2 szobás
- alapterület: 52,72 m2 + 31 m2 erkély (eladási árban erkély m2 felével számolva)
- nettó eladási ár: 88.686.000 Ft + ÁFA (27%, fordított ÁFA). Emelt szintű fűtéskész állapot.
- garázs ára: br. 10.000.000 Ft
- tároló ára: nettó 900.000 Ft/m2

Műszaki tartalom:
-monolit vasbeton födémszerkezet,
-külső teherhordó falak 30N+F Vázkerámia téglából készült, elválasztó falak hanggátló téglából,
-tető: lapostető kialakítással, UV álló PVC szigeteléssel,
-homlokzati hőszigetelő rendszer: 20 cm,
-apartmanok közötterkély választók. Edzett, biztonsági üveg korlát, tömör mellvéd.

Nyílászárók:
-külső nyílászárók műanyag, külső alumínium borítással, hőszigetelő háromrétegű üvegezéssel,
-bejárati ajtók több ponton záródó műanyag biztonsági ajtók, kilinccsel szerelve,
-vakolható redőny doboz lábakkal, elektromos vezetékezéssel.

Fűtés-meleg víz:
-központi fűtési rendszer: a meleg víz ellátását 1 db villamos üzemű tároló (80 l) biztosítja,
-lépcsőházanként 2x16kW-os osztott hőszivattyú (tetőn elhelyezve),
-padlófűtés fancoil hűtési osztó, távleolvasásos hőmennyiségmérővel,
-fürdőszobában elektromos törölközőszárító.

A projektben még 1. és 2. emeleti lakások aktuálisak, 45,07 m2-től 55,06 m2-ig, nagy méretű teraszokkal. A még aktuális lakásokról, kérem érdeklődjön irodánknál (folyamatosan változhat).

Érdeklődő Ügyfeleink kérésére alaprajzot, műszaki leírást, egyéb információkat küldünk, de irodánkban is szívesen állunk rendelkezésükre részletes tájékoztató megbeszélésen.

A helyszíni bejárást leszervezzük, időpont egyeztetéssel. Fontos!!! Veszélyes üzem. Kérjük, önállóan ne keressék fel az építkezést!

A hirdetésben szereplő információk tájékoztató jellegűek, a változtatás jogát a Tulajdonos fenntartja.

Az ingatlan megtekintése irodánkkal előre egyeztetett időpontban történik. Szívesen állunk rendelkezésre!

Keresünk és kínálunk eladó és bérbeadó ingatlanokat, albérleteket Veszprém, Balaton, Bakony, Káli-medence régióban.
Ügyeleti telefonszámunk: .
A Nívó Ingatlanforgalmi Szakértői Iroda teljes eladó és bérbeadó ingatlan és albérlet kínálatát megtekintheti a oldalunkon.

Irodai azonosító kód: N4802 Nívó ingatlan: N4802

Lakás részletei

Ár: 112 631 220 Ft
Méret: 53 négyzetméter
Azonosító: 11536800
Cím: 8200 Veszprém, Kőbánya utca 2.
Emelet: 1. emelet
Építőanyag: Kérdezzen rá a hirdetőtől »
Fűtés jellege: Egyéb
Ingatlan állapota: Kérdezzen rá a hirdetőtől »
Építési év: 1-5 éves
Elhelyezkedés: Társasház
Egész szobák: 1
Fél szobák: 2

Egyéb jellemzők

  • Erkély
  • Klíma

Így keressen lakást négy egyszerű lépésben. Csupán 2 perc, kötelezettségek nélkül!

Szűkítse a lakások
listáját
Válassza ki a megfelelő
lakást
Írjon a hirdetőnek
Várjon a visszahívásra