Eladó lakás Balatonakarattya 176 580 800 Ft

Leírás

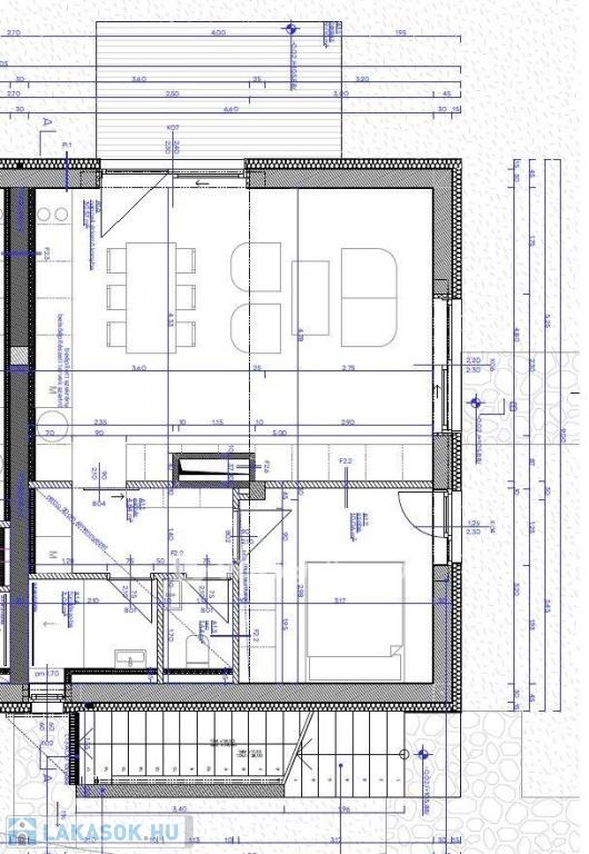
Balaton-part, Balatonakarattya panorámás üdülőegység eladó. Az ingatlan szabadstrand szomszédságában helyezkedik el. A társasüdülő épületek földszint, emelet, tetőtér kialakításúak, a pinceszinten tárolókkal, gépészeti terekkel rendelkeznek. A megújuló energiával működő korszerű épületszerkezetek kedvező üzemeltetést biztosítanak egész évben. Az üdülőegységek hűtése fűtése használati melegvíz ellátása egységenként egyedi hőszivattyúval megoldott. A zárt udvaron, felszíni parkolóban egységenként egy parkolóhely benne van az árban. Korszerű épületszerkezetekkel épül, magas minőségű nyílászárókkal, hőszigetelő üvegezéssel. A kert parkosított, térkő burkolattal jelenik meg. A Balaton legszebb panorámája tárul elénk az üdülőegységekből. Az ingatlan előtti ligetes strandon büfé és játszótér áll rendelkezésre. Budapest autópályán 1 óra alatt elérhető.

Referencia szám: M219736

Lakás részletei

Ár: 176 580 800 Ft
Méret: 62 négyzetméter
Azonosító: 11348737
Irodai azonosító: M219736-4114519
Emelet: Földszint
Építőanyag: Tégla
Ingatlan állapota: Átlagos
Építési év: Új építésű
Kilátás: panorámás
Egész szobák: 2

Egyéb jellemzők

  • Kocsibeálló

Térkép


Így keressen lakást négy egyszerű lépésben. Csupán 2 perc, kötelezettségek nélkül!

Szűkítse a lakások
listáját
Válassza ki a megfelelő
lakást
Írjon a hirdetőnek
Várjon a visszahívásra