Eladó lakás Balatonakarattya 130 000 000 Ft

Leírás

Balatonakarattya egyik csendes, kedvelt részén kínáljuk megvételre egy igényesen kialakított, kétlakásos, modern családi ház alsó lakását, a GDN Ingatlanhálózat kínálatából!

- Az ingatlan korszerű műszaki tartalommal készült: energiatakarékos hőszivattyús rendszer biztosítja a fűtést és a használati melegvizet.
- A 15 cm vastag külső hőszigetelés és a minőségi műanyag nyílászárók rejtett redőnyökkel, hozzájárulnak az alacsony fenntartási költségekhez és a komfortos lakóklímához.
- A tető cserépfedést kapott, az ingatlan minden közművel ellátott.

- A földszinti lakás teljes körű átalakítással nyerte el jelenlegi, modern formáját.
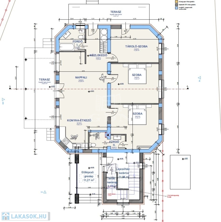
- A bruttó 110 m² alapterületen praktikus elrendezésű, világos, élhető terek kerültek kialakításra: 3 szobával, tágas amerikai konyhás nappalival, fürdőszobával, WC-vel, előtérrel.
- A lakáshoz két tágas terasz kapcsolódik, amelyek ideális helyszínei a pihenésnek vagy családi, baráti összejöveteleknek.

- A hozzá tartozó, körülbelül 400 m²-es saját kertrész intimitást és önálló életteret biztosít.
- A bejárat teljesen elkülönítetten került kialakításra, így a lakások zavartalanul használhatók.
- A telekhasználat megosztott, lakásonként rendezett formában biztosított.

- A kivitelezés jelenleg az utolsó simításoknál tart, így az új tulajdonos egy szinte teljesen kész, korszerű otthonba költözhet.

Ez az ingatlan ideális választás lehet otthonnak, nyaralónak vagy akár befektetésnek is, Balatonakarattya egyik csendesebb részén!

Ne hagyja ki ezt a remek lehetőséget!

Amennyiben a veszprémi GDN Ingatlaniroda által kínált új építésű, balatonakarattyai, kertkapcsolatos lakás vagy bármely, a kínálatunkban található ingatlan felkeltette érdeklődését, forduljon hozzám bizalommal!

Ingatlanirodánk díjmentes, banksemleges hitelügyintézéssel, illetve ügyvédi tanácsadással is áll Ügyfeleink rendelkezésére!

Lakás részletei

Ár: 130 000 000 Ft
Méret: 100 négyzetméter
Azonosító: 11599764
Irodai azonosító: 392673
Cím: Szép utca
Emelet: Földszint
Építőanyag: Tégla
Fűtés jellege: Hőszivattyú
Ingatlan állapota: Kitűnő
Komfort fokozat: Összkomfort
Építési év: Újszerű
Tulajdonviszony: Saját
Kilátás: kertre néző
Egész szobák: 3

Egyéb jellemzők

  • Erkély
  • Garázs
  • Lift
  • Pince
  • Tároló

Térkép


Így keressen lakást négy egyszerű lépésben. Csupán 2 perc, kötelezettségek nélkül!

Szűkítse a lakások
listáját
Válassza ki a megfelelő
lakást
Írjon a hirdetőnek
Várjon a visszahívásra