Eladó lakás Albertirsa 52 800 000 Ft

Leírás

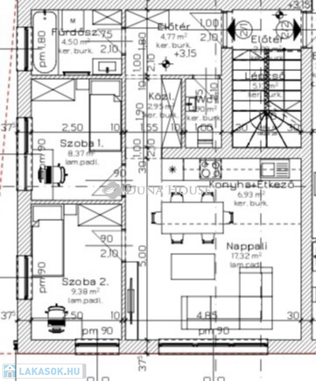
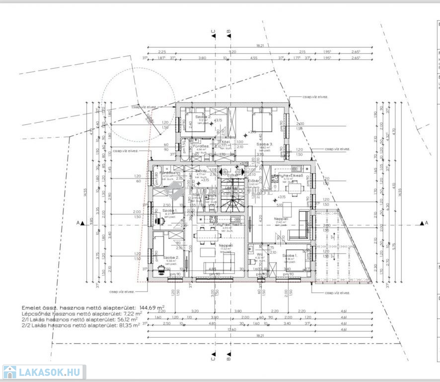
ELADÓ ÚJ ÉPÍTÉSŰ 4 LAKÁSOS TÁRSASHÁZBAN EGY 56 m2-es emeleti lakás.

IGAZI GYÖNGYSZEM A KÍNÁLATUNKBAN!

Az ingatlan városközpontban, kiváló helyen helyezkedik el.

Saját fedett parkoló az árban.
Kialakítása: 2 szoba, nappali+konyha étkező, előtér, közlekedő, fürdő, külön wc

Átadás: 2025. I. negyedév

Választható:
szaniterek: 380.000 Ft-os értékhatárig
hideg és melegburkolatok: 6000 Ft/ m2
beltéri ajtók: 70.000 Ft-ig választhatók


Extra: helyiségenként led panelek az árban, schneider szerelvények , konnektorok és szerelvények darabszáma nincs korlátozva

Műszaki paraméterek: fűtése hőszivattyúval HMV melegvíz tartály tárolóval padlófűtéssel külön szabályozható ( All in One)
H tarifa az ár részét képezi:16 A, 25 cm-es födém szigetelés, 3 rtg 6 légkamrás nyílászárók, Antracit színű Terrán/Bramac cserép fehér homlokzattal, redőny és szúnyogháló helységenként, elektromos utcafronti kapu, viz villany csatorna az ingatlanban, inverteres klíma az árban, Gealan minőségű műanyag nyílászárók

Jelenlegi energetika besorolásnak megfelelő A ++

Viablokk-Porusbeton (ytong)-ból épül.

Teljes körbekerített telek, tereprendezéssel.

Jöjjön el nézzük meg együtt, garantáltan nem fog csalódni.

Közelben: Iskola, Óvoda 1-2 percnyire, Vasútállomás gyalogosan 10 perc. Budapest távolsága vonattal 50 perc a Nyugati Pályaudvarig.

Amennyiben felkeltettem érdeklődését, hívjon bizalommal.

Lakás részletei

Ár: 52 800 000 Ft
Méret: 56 négyzetméter
Azonosító: 11543578
Irodai azonosító: LK081905-4967112
Emelet: 2. emelet
Építőanyag: Kérdezzen rá a hirdetőtől »
Fűtés jellege: Hőszivattyú
Ingatlan állapota: Épülő
Építési év: Új építésű
Egész szobák: 3

Térkép


Így keressen lakást négy egyszerű lépésben. Csupán 2 perc, kötelezettségek nélkül!

Szűkítse a lakások
listáját
Válassza ki a megfelelő
lakást
Írjon a hirdetőnek
Várjon a visszahívásra