Kiadó lakás Tata 250 000 Ft

Leírás

Kiadó lakás a FÉNYES LAKÓPARKBAN!!!!!
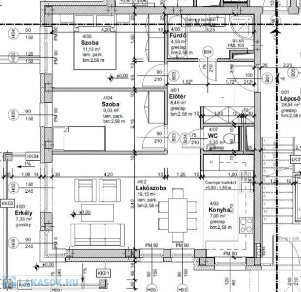
Tata központjához közel KIADÓ egy exkluzív társasház magasföldszintjén egy 70 nm es bútorozott öröklakása.
Elosztása: amerikai-konyhás nappali , kamra,két hálószoba, fürdő, wc, előtér, terasz. Az épületek kivitelezésénél magas minőségű alapanyagok kerültek beépítésre. Fűtése gáz házközponti, lakásonként egyedi mérőkkel,nagyon alacsony fenntartással.
Az ingatlan bútorozottan kizárólag hosszú távra kiadó!

A lakás bérleti díja 250.000Ft +20.000Ft a terembeálló használata= 270.000Ft+ rezsi
2 havi kaució szükséges.

Lakás részletei

Ár: 250 000 Ft/hónap
Méret: 70 négyzetméter
Azonosító: 11605252
Irodai azonosító: 9744
Cím: Tata
Emelet: Félemelet
Építőanyag: Kérdezzen rá a hirdetőtől »
Ingatlan állapota:
Építési év: Új építésű
Egész szobák: 3

Egyéb jellemzők

  • Erkély

Így keressen lakást négy egyszerű lépésben. Csupán 2 perc, kötelezettségek nélkül!

Szűkítse a lakások
listáját
Válassza ki a megfelelő
lakást
Írjon a hirdetőnek
Várjon a visszahívásra