Kiadó lakás Győr 240 000 Ft

Leírás

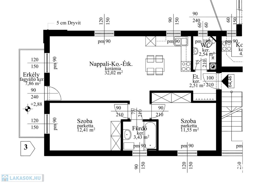
Győr-Révfalu csendes utcájában keresem új bérlőjét ennek az erkélyes, 65nm-es nappali+2 szobás bútorozott, erkélyes lakásnak.
Az ingatlan egy saját zárt udvarral rendelkező, 3 szintes, 10 éve épült társasházban helyezkedik el.
A lépcsőház tiszta, rendezett, a lakóközösség megbízható, barátságos.
A lakás az első emeleten található, elosztása szerint: nappali-konyha-étkező, 2 hálószoba, kádas fürdőszoba, wc, előszoba helyiségekből áll.
Az erkély mérete: 8 nm.
Az autó parkolásra sem lesz gondja, hiszen egy saját kocsibeálló is tartozik hozzá.
A lakás bérleti díja a gépkocsibeállóval együtt: 240.000,-Ft+rezsi/hó
(Rezsiköltség átlagosan 35.000,-Ft/hó körül alakul)
Szerződéskötéshez 1 havi bérleti díj és 2 havi kaució, valamint közjegyzői kiköltözési nyilatkozat szükséges, melynek költsége ~45.000,-Ft.
A lakás gyorsan költözhető, minimum 1 évre kiadó.
Megbízható, rendszerető személyt, fiatal párt keresünk, akik gondját viseli ennek a kis otthonnak.
Kisállat tartása és a dohányzás a lakásban nem megengedett!
Várom hívását, ez egy klassz lakás, klassz helyen!
(További képekért és információkért kérem hívjon!)

Lakás részletei

Ár: 240 000 Ft/hónap
Méret: 65 négyzetméter
Azonosító: 11565708
Irodai azonosító: 231836
Erkély mérete: 8.00 négyzetméter
Építőanyag: Tégla
Fűtés jellege: Cirkó
Ingatlan állapota: Kitűnő
Komfort fokozat: Összkomfort
Egész szobák: 3
Nappalik: 1

Egyéb jellemzők

  • Erkély
  • Garázs
  • Klíma
  • Lift
  • Pince
  • Kertkapcsolat

Így keressen lakást négy egyszerű lépésben. Csupán 2 perc, kötelezettségek nélkül!

Szűkítse a lakások
listáját
Válassza ki a megfelelő
lakást
Írjon a hirdetőnek
Várjon a visszahívásra