Kiadó lakás Budapest XIII. ker 295 000 Ft

Leírás

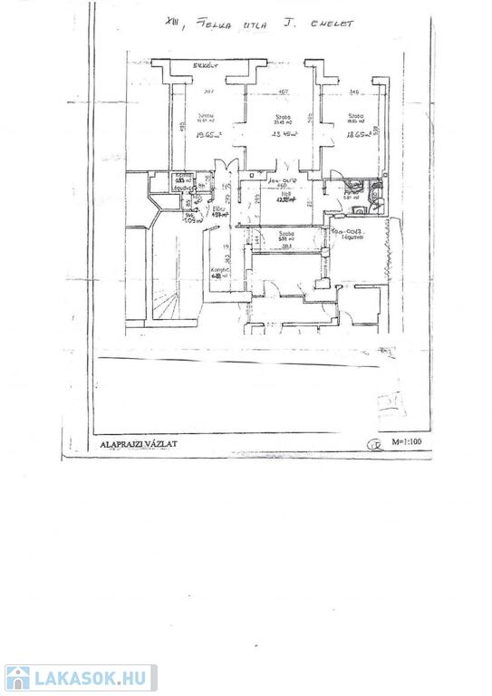
Budapest XIII. Újlipótvárosban a csendes Felka utcában, felújított liftes házban első emeleti 100nm-es, nagy erkélyes 3,5 szoba hallos, bútorozatlan, gépesített lakás minimum egy évre kiadó. Helyiségei: előszoba, külön konyha gáztűzhellyel, mosogatógép és nagy hűtővel, hall- étkező, gardróbnak alkalmas 6nm-es szoba, nappali 23,45nm, szobák 18.65 és 19.65nm-esek., a nagyobb szobából van kijárás az erkélyre. Fürdőszobában sarokkád és WC van, itt kapott helyet a mosógép, valamint szellőztethető külön vendég WC, kézmosóval. Olyan bérlő jelentkezését várjuk, aki sajátjaként szeretné és becsülné meg ezt a hatalmas terekkel rendelkező, szép lakást. A felújított liftes társasháznak rendezett kertje van, az udvaron találhatóak a szelektív kukák, a ház oldalában kis játszótér került kialakításra. Fűtése gáz cirkó, melynek díja fogyasztás és mérés alapján fizetendő, áram úgyszintén. Kiváló lokáció és infrastruktúra. Közelben az éjjel-nappal közlekedő 4-6-os villamos, az M 3-as, 15, 115, 9, 26 busz és trolibuszjáratok, valamint a Margitsziget, Szent István park, közértek, éttermek és nem utolsósorban a WestEnd City Center számos vásárlási és szórakozási lehetőségekkel. Közös költség vízdíjjal 29.000 Ft. Bérleti díj 295.000Ft. + 2 havi kaució
Azonnal költözhető, megtekintése rugalmas, akár hétvégén is. 06-3O 3825 38O

Lakás részletei

Ár: 295 000 Ft/hónap
Méret: 100 négyzetméter
Azonosító: 11570873
Irodai azonosító: 12236
Cím: Felka utca
Rezsi: 30 040 Ft/hó
Emelet: 1. emelet
Építőanyag: Tégla
Fűtés jellege: Cirkó
Ingatlan állapota:
Komfort fokozat: Összkomfort
Elhelyezkedés: Társasház
Tulajdonviszony: Saját
Bútorozott: Nem bútorozott
Kilátás: utcai
Egész szobák: 3
Fél szobák: 1
Nappalik: 1

Egyéb jellemzők

  • Erkély
  • Garázs
  • Klíma
  • Lift
  • Pince
  • Tároló
  • Kocsibeálló

Így keressen lakást négy egyszerű lépésben. Csupán 2 perc, kötelezettségek nélkül!

Szűkítse a lakások
listáját
Válassza ki a megfelelő
lakást
Írjon a hirdetőnek
Várjon a visszahívásra