Kiadó lakás Budapest V. ker 375 000 Ft

Leírás

Világos, 3 hálószobás lakás kiadó a Belváros szívében – Kecskeméti utca

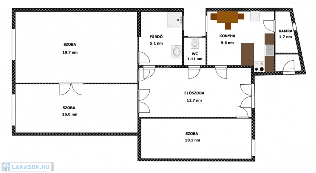
Budapest V. kerületében, a Kecskeméti utcában, néhány lépésre a Kálvin tértől, egyetemek, múzeumok, éttermek és hangulatos kávézók közvetlen szomszédságában hosszú távra kiadó egy 76 m²-es, 2. emeleti, 3 hálószobás lakás. ️

A lakás 2020-ban teljes körűen felújított, napfényes, barátságos terekkel rendelkezik.
Elosztása: 3 külön nyíló szoba, konyha, fürdőszoba és külön WC.

A lakás teljesen bútorozott és gépesített, de a tulajdonos rugalmas — igény szerint bútorokat elszállít, vagy akár üresen is átadja a lakást, egyéni megbeszélés alapján. ️✨

Kiváló elhelyezkedés: a Kálvin tér (M3, M4 metró, 47-es és 49-es villamos, 914-es éjszakai busz) pár perces sétával elérhető.
️ Minden közmű egyedileg mérhető, az infrastruktúra pedig elsőrangú.

A beköltözés feltétele: 2 havi kaució + 1 havi bérleti díj, a lakás azonnal költözhető. ️

Amennyiben felkeltettem érdeklődését, rugalmasan állok rendelkezésére – hívjon bizalommal!

GDN ID: 384494

Lakás részletei

Ár: 375 000 Ft/hónap
Méret: 76 négyzetméter
Azonosító: 11574990
Irodai azonosító: 384494
Cím: Kecskeméti utca
Emelet: 2. emelet
Építőanyag: Tégla
Fűtés jellege: Cirkó
Ingatlan állapota: Felújított
Komfort fokozat: Összkomfort
Építési év: 50 évesnél régebbi
Tulajdonviszony: Saját
Kilátás: utcai
Egész szobák: 3

Egyéb jellemzők

  • Erkély
  • Garázs
  • Lift
  • Pince
  • Tároló

Térkép


Így keressen lakást négy egyszerű lépésben. Csupán 2 perc, kötelezettségek nélkül!

Szűkítse a lakások
listáját
Válassza ki a megfelelő
lakást
Írjon a hirdetőnek
Várjon a visszahívásra