Kiadó lakás Budapest V. ker 370 000 Ft

Leírás

Kiadó elegáns, Bauhaus stílusú lakás Budapest szívében – Petőfi tér



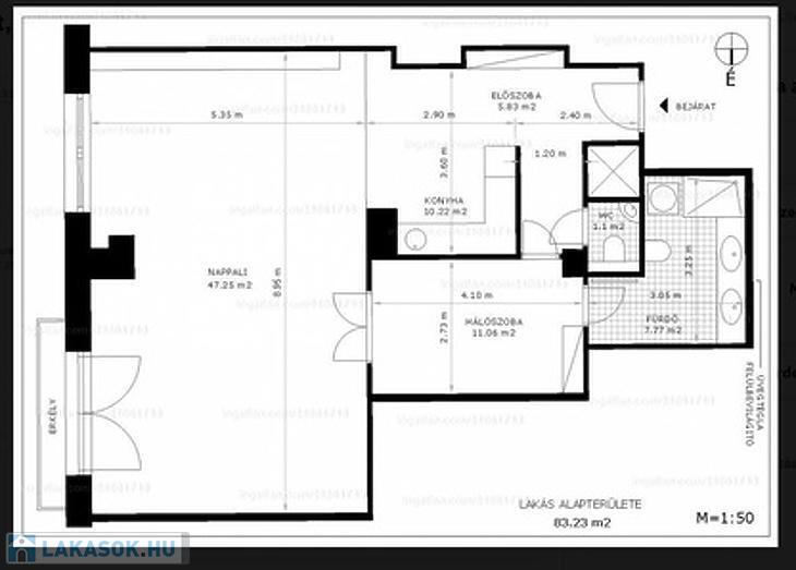
Budapest V. kerületének egyik legpatinásabb részén, a Petőfi téren kínálunk kiadásra egy kivételes adottságokkal rendelkező, 83 négyzetméteres, Bauhaus stílusban épült, erkéllyel rendelkező lakást. Az ingatlan egy rendezett, portaszolgálatos, elegáns társasház ötödik emeletén található, természetesen lifttel megközelíthető.

A lakás teljesen bútorozott és gépesített, így azonnal költözhető, különösen ideális azoknak, akik egy minőségi, igényesen kialakított otthont keresnek a belváros szívében. A két tágas, világos szoba mellett külön konyha, fürdőszoba és előszoba szolgálja a kényelmet. A nyílászárók háromrétegű, hő- és hangszigetelő thermo üveggel ellátott, duplakomfortos kialakítású ablakok, a kellemes hőérzetről pedig légkondicionáló berendezés is gondoskodik.



Bérleti díj és költségek:

- Bérleti díj: 975 EUR / hó + rezsi

- Közös költség: 60 000 Ft, amely tartalmazza

  - házközponti fűtést

  - háztakarítást

  - szemétszállítást

  - biztosítást

Áram- és vízfogyasztás külön fizetendő a tényleges mérőórák alapján



A lakás azonnal költözhető, tárgyhavi bérleti díj, két havi kaució és a közjegyzői díj fele megfizetése mellett.



Dohányzás és kisállat nem engedélyezett!!



Tömegközlekedés:

  - Villamosjáratok (pl. 2-es villamos) a közelben, amelyek közvetlenül visznek a Dunához és a belváros más részeire.

  - Buszjáratok és esetleg trolik is elérhetők.

  - A metró vonalak (M1, M2, M3) néhány perces sétányira, attól függően, melyik állomás felé indulunk – kiváló kapcsolatokkal az egész városra.



Parkolási lehetőség az utcán, illetve kb. 250 méterre egy parkolóház.



Gyalogosan és kerékpárral is nagyon jó: a sétatávolságban minden fontos szolgáltatás, üzlet, étterem, szórakozási lehetőség megtalálható.

Lakás részletei

Ár: 370 000 Ft/hónap
Méret: 83 négyzetméter
Azonosító: 11569067
Irodai azonosító: 23376
Emelet: 5. emelet
Építőanyag: Kérdezzen rá a hirdetőtől »
Fűtés jellege: Házközponti (egyedi mérővel)
Ingatlan állapota: Átlagos
Egész szobák: 2

Így keressen lakást négy egyszerű lépésben. Csupán 2 perc, kötelezettségek nélkül!

Szűkítse a lakások
listáját
Válassza ki a megfelelő
lakást
Írjon a hirdetőnek
Várjon a visszahívásra