Kiadó lakás Budapest III. ker 490 000 Ft

Leírás

Egy csendes, mégis remekül megközelíthető óbudai környezetben válik elérhetővé 2026 januárjától egy ritka adottságokkal rendelkező, háromszintes, 95 m²-es otthon, amely tökéletes választás lehet azoknak, akik a városi kényelem mellett értékelik a kert, a terasz és a privát kültéri élettér nyújtotta szabadságot.

A modern, letisztult stílusú sorházi lakás frissen felújítva, újszerű állapotban kerül átadásra, és a környék nyugodt, családbarát hangulata miatt ideális többek között pároknak, kisgyermekes családoknak, vagy olyan külföldi bérlőknek, akik minőségi, hosszú távú otthont keresnek Budapest egyik legélhetőbb részén.

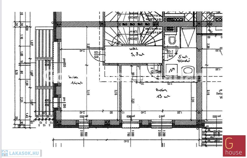
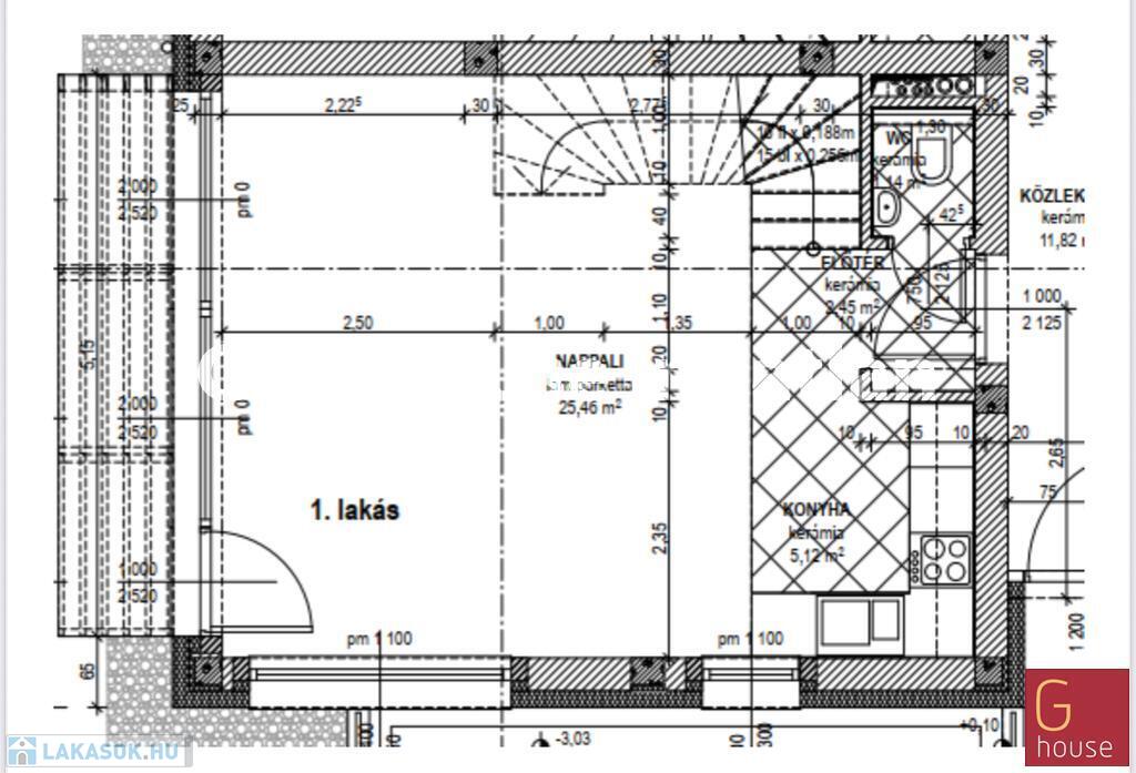
Az alsó szint tágas nappali–étkező–konyha tere egybefüggő, világos élettérként működik, közvetlen kapcsolatban a terasszal és a gondozott kerttel, ahol saját medence, kerti tároló és játszóvár biztosít kényelmet és kikapcsolódási lehetőséget.
A felső szinten két jól bútorozható hálószoba és egy modern fürdőszoba kapott helyet, míg a legfelső szinti szoba külön tetőterasszal bővül, harmonikus privát menedéket teremtve.
A lakás bútorozatlanul kerül bérbeadásra, azonban a beépített konyhabútor, a gépek, a mosdópultok, a klímák és a lámpatestek a bérlő rendelkezésére állnak.

A műszaki megoldások között mennyezet- és padlófűtés, minden helyiségben elhelyezett split klíma, modern hőszigetelés és kiváló minőségű nyílászárók gondoskodnak a komfortos és gazdaságos működésről.
A pincében külön mosókonyha és tároló is szolgálja a kényelmet, valamint egy zárt, kényelmes gépkocsibeálló, továbbá egy belső, kétszeres parkolásra alkalmas garázs is a bérlemény része.
A bérleti díj 490 000 Ft + áfa havonta, háromhavi kaucióval.
A bérbeadó hosszú távra, minimum 2–3 évre keres igényes bérlőt; az egyéves szerződés nem lehetséges.

A közüzemi elszámolás a lakás saját mérői alapján történik, kivéve a vízfogyasztást, amely átalányban (5.000Ft / hó), majd 3/4 havonta elszámolással működik. A közjegyzői szerződéskötés a bérlő költsége.

Az ingatlan olyan otthont kínál, ahol a modern technológia, a biztonságos kialakítás és a természetközeli kertkapcsolat egyesül.
Ideális mindazok számára, akik a minőséget, a rendezettséget és a nyugodt környéket részesítik előnyben, miközben fontos számukra a város közelsége és a jól megközelíthetőség.

Lakás részletei

Ár: 490 000 Ft/hónap
Méret: 95 négyzetméter
Azonosító: 11582616
Irodai azonosító: 14553
Cím: Óarany utca
Építőanyag: Tégla
Ingatlan állapota: Kitűnő
Egész szobák: 4

Egyéb jellemzők

  • Erkély
  • Lift
  • Pince

Így keressen lakást négy egyszerű lépésben. Csupán 2 perc, kötelezettségek nélkül!

Szűkítse a lakások
listáját
Válassza ki a megfelelő
lakást
Írjon a hirdetőnek
Várjon a visszahívásra